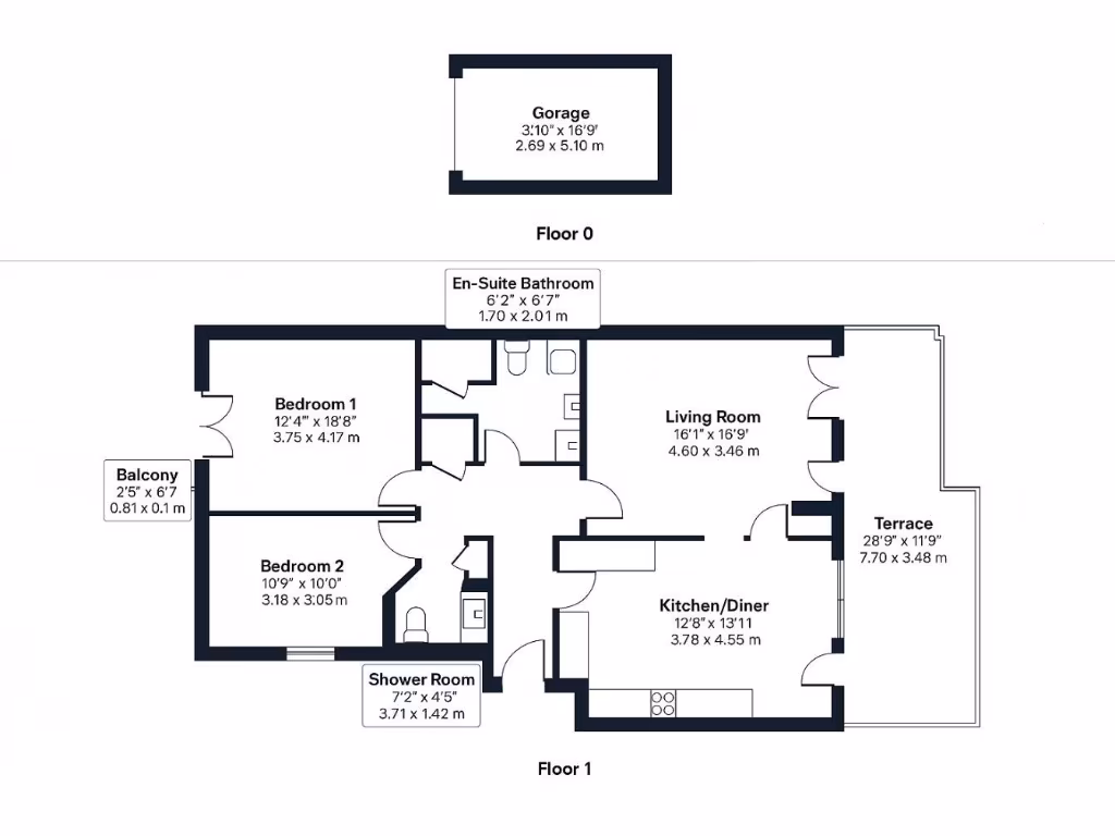
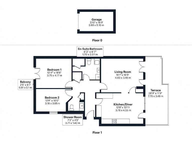
Upper-ground flat with private patio, underground garage and residents heated pool.
First-line seafront position, immediate access to promenade and beach
Located on the upper-ground level of a landmark Worthing development, this two-double-bedroom apartment sits a few feet from the promenade and pebble beach. The home offers a private patio directly off the living area, secure underground garage parking and access to an indoor, residents-only heated swimming pool — rare outside London. The layout includes a principal bedroom with ensuite and dressing area, a large open-plan kitchen/diner and good built-in storage across about 722 sq ft.
The building was completed in the early 2000s and benefits from double glazing and gas central heating via a boiler and radiators. The long lease (169 years remaining) provides tenure security for buyers, though this is a leasehold property and additional leasehold-related fees and packs may apply. Council tax band is moderate.
Buyers should factor in seafront-specific running costs: coastal exposure can increase maintenance, insurance and communal repair bills over time. The local area shows higher-than-average crime and broader deprivation indicators, and the immediate neighbourhood is diverse with a mix of residents including students and migrant families.
This property will suit downsizers or buyers seeking a low-stairs coastal base with high convenience to town amenities and strong rental or holiday-let appeal. It is presented in good contemporary condition but prospective purchasers are advised to commission independent surveys and service reports before purchase.
2 bedroom flat for sale in Warnes, Worthing, West Sussex, BN11 — £465,000 • 2 bed • 2 bath • 993 ft²
2 bedroom flat for sale in Steyne Gardens, Worthing, BN11 — £575,000 • 2 bed • 2 bath • 1035 ft²
2 bedroom flat for sale in Steyne Gardens, Worthing, West Sussex, BN11 — £400,000 • 2 bed • 2 bath • 906 ft²
3 bedroom flat for sale in Steyne Gardens, Worthing, West Sussex, BN11 — £775,000 • 3 bed • 2 bath • 1176 ft²
3 bedroom flat for sale in Steyne Gardens, Worthing, BN11 3DW, BN11 — £750,000 • 3 bed • 2 bath • 995 ft²
2 bedroom flat for sale in Warnes, Steyne Gardens, Worthing BN11 3DW, BN11 — £585,000 • 2 bed • 2 bath • 1109 ft²






































































