Renovation project with clear buy-to-let potential near town centre.
Attractive guide price £45,000
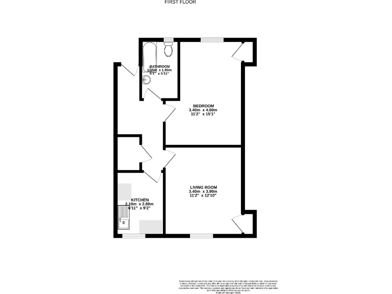
A compact one-bedroom flat in a traditional 1900 stone tenement, offered at an attractively low guide price of £45,000. The first-floor apartment extends to about 47 sqm (506 sq ft) and benefits from UPVC double glazing, mains services, and strong mobile and broadband connectivity. Outside there is a shared rear drying green/garden with a storage shed and easy on-street parking to the front.
The property is a complete renovation project: internal fittings, decoration and likely services upgrading are required throughout. Once refurbished, the layout — entrance hall, living room, kitchen, bathroom and one bedroom — would suit a single occupant or couple and has clear buy-to-let potential in a market where low-priced entry points are uncommon. The compact rooms and period features give scope for a tasteful modernisation that preserves character.
Important considerations: the flat sits in a very deprived local area classification and rental demand may be constrained; tenure is unspecified and should be confirmed. EPC D and Council Tax Band A are noted, but substantial investment will be needed to modernise the property and achieve higher returns or long-term comfort. This is best suited to an investor or buyer prepared to carry out or manage a full refurbishment and to accept the location-related risks.
1 bedroom ground floor flat for sale in 1/1 Hunter Terrace, Hawick, TD9 8BD, TD9 — £55,000 • 1 bed • 1 bath • 494 ft²
1 bedroom flat for sale in Mansfield Gardens, Hawick, TD9 — £46,000 • 1 bed • 1 bath • 624 ft²
3 bedroom flat for sale in 5/4 , Dovemount Place
Hawick, TD9 8AZ, TD9 — £95,000 • 3 bed • 1 bath • 1001 ft²
1 bedroom flat for sale in 3G, Allars Bank
Hawick, TD9 9EX, TD9 — £55,000 • 1 bed • 1 bath • 326 ft²
1 bedroom flat for sale in 5/2, Sandbed
Hawick, TD9 0HE, TD9 — £55,000 • 1 bed • 1 bath • 570 ft²
1 bedroom flat for sale in 17/3 , Mansfield Road
Hawick, TD9 8AB, TD9 — £65,000 • 1 bed • 1 bath • 502 ft²










































