Small, furnished one-bed ideal for buy-to-let or first-time ownership, ready now.
Turnkey one-bedroom top-floor flat, fully furnished and ready to let
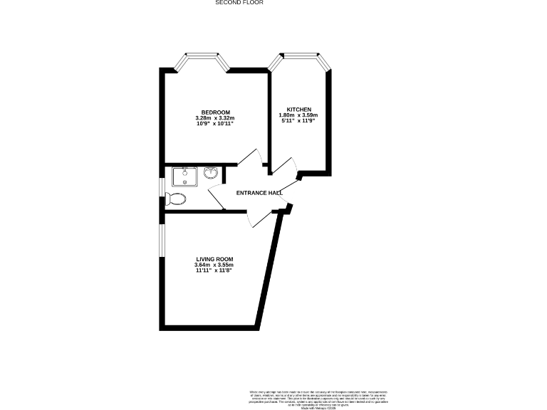
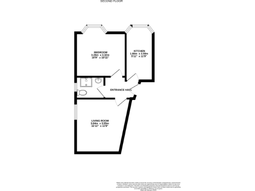
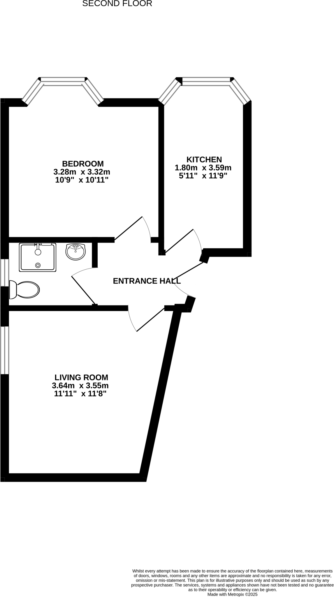
A compact, top-floor one-bedroom flat presented in turnkey condition and offered fully furnished for immediate letting or short‑stay use. The flat sits in a traditional Victorian stone building just a short walk from Hawick’s main high street, with excellent mobile signal and fast broadband suitable for holiday lets or modern tenants.
The accommodation is small (approximately 326 sqft) but efficiently arranged: secure communal entrance, inner hallway, living room, bedroom, shower room and a modern fitted kitchen with integrated appliances. Gas central heating and UPVC double glazing are in place, and there is ample off-street parking nearby with a residents’ car park opposite.
This is aimed at buy-to-let investors or first-time buyers seeking a low‑maintenance, income-ready purchase. The owner prefers a portfolio sale with the adjacent flat H but will consider individual sales. Note the property is in a very deprived local area classification, which can affect tenant demand and long‑term capital growth — factor this into yield expectations.
Practical matters: the tenure is recorded as unknown and should be confirmed before purchase. The flat benefits from no flood risk, mains services and is ready to let immediately, but its small size and top-floor location may limit appeal for families or buyers requiring generous living space.
1 bedroom flat for sale in 3H, Allars Bank
Hawick, TD9 9EX, TD9 — £60,000 • 1 bed • 1 bath
1 bedroom flat for sale in 5/2, Sandbed
Hawick, TD9 0HE, TD9 — £55,000 • 1 bed • 1 bath • 570 ft²
1 bedroom flat for sale in Howegate, Hawick, TD9 — £40,000 • 1 bed • 1 bath • 657 ft²
2 bedroom flat for sale in 2E, St Cuthberts Terrace
Hawick, TD9 9DR, TD9 — £79,995 • 2 bed • 1 bath • 807 ft²
1 bedroom flat for sale in 4/3 Northcote Street, Hawick, TD9 9QU, TD9 — £55,000 • 1 bed • 1 bath • 538 ft²
1 bedroom flat for sale in Mansfield Gardens, Hawick, TD9 — £46,000 • 1 bed • 1 bath • 624 ft²


























































