Spacious four-bedroom detached house with outbuilding and excellent school links.
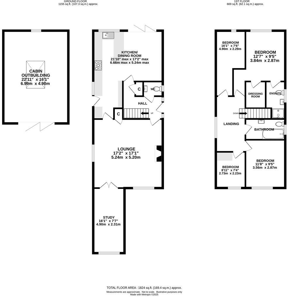
Four bedrooms, principal with ensuite and dressing room
Large kitchen/diner with bi-fold doors to garden
Versatile purpose-built outbuilding with wood burner
Generous block-paved driveway, off-street parking for several cars
Close to Brentwood station and Elizabeth Line connections
Near highly rated schools including Becket Keys and Brentwood Ursuline
Solid brick walls (1900–1929) — assumed no cavity insulation
Council tax band noted as expensive
A well-presented detached family home on Doddinghurst Road offering four bedrooms, two bathrooms and versatile living space over two storeys. The principal bedroom includes an ensuite and dressing area, while a large open-plan kitchen/diner with bi-fold doors opens onto a mature rear garden — a practical layout for everyday family life and entertaining.
Outside, a substantial block-paved driveway provides off-street parking for several cars and the generous rear garden houses a purpose-built outbuilding currently fitted as a bar and living area with its own wood burner — ideal as a home office, playroom or leisure annexe. The property sits less than a mile from Brentwood High Street and is within easy reach of Brentwood station (Elizabeth Line services) and several highly regarded schools.
Buyers should note this is a solid-brick home constructed circa 1900–1929; external walls are assumed to have no built-in insulation and older properties can need periodic maintenance or upgrading. Council tax is noted as expensive for this band. Overall, this freehold house suits families seeking ready-to-move-in accommodation with versatile ancillary space and good local transport and schooling links.
4 bedroom detached house for sale in Outings Lane, Doddinghurst, Brentwood, CM15 — £800,000 • 4 bed • 2 bath • 1708 ft²
3 bedroom detached house for sale in St Kildas Road, Brentwood, CM15 — £650,000 • 3 bed • 2 bath • 1230 ft²
5 bedroom detached house for sale in Outings Lane, Doddinghurst, CM15 — £1,150,000 • 5 bed • 3 bath • 2926 ft²
4 bedroom detached house for sale in Brook Lane, Doddinghurst, Brentwood, CM15 — £875,000 • 4 bed • 2 bath • 2045 ft²
5 bedroom detached house for sale in The Gardens, Doddinghurst, Brentwood, Essex, CM15 — £800,000 • 5 bed • 2 bath • 2126 ft²
5 bedroom house for sale in Viking Way, Pilgrims Hatch, Brentwood, CM15 — £600,000 • 5 bed • 1 bath • 581 ft²


























































































