Single-level, renovated living with solar income and generous parking.
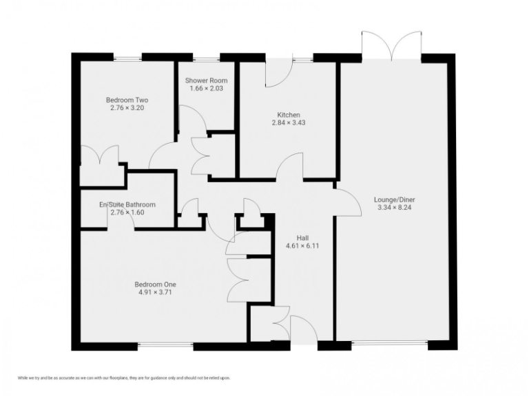
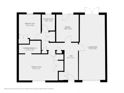
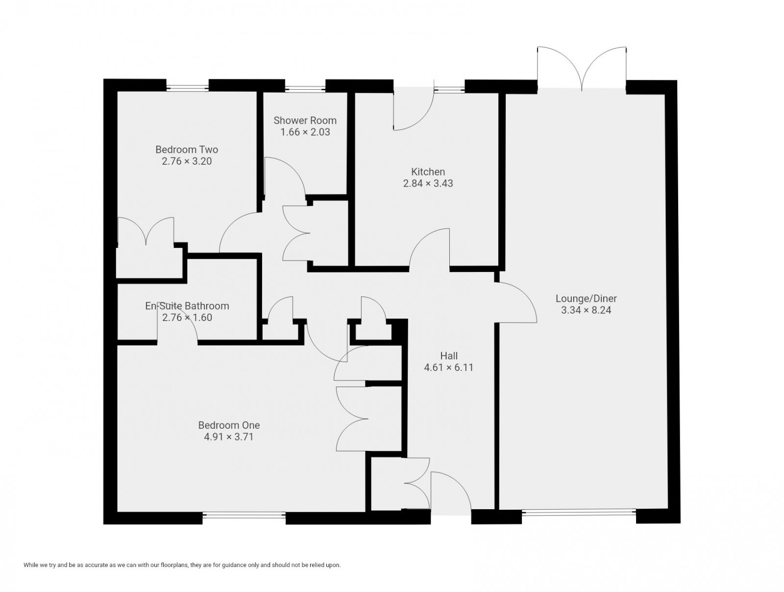
Two double bedrooms with en-suite to main bedroom
A neatly presented two-bedroom semi-detached bungalow offering single-floor living and roomy open-plan living. The property has been newly renovated and extends to about 913 sq ft with a large plot, landscaped rear garden, driveway for several vehicles and space for a caravan. Solar panels reduce bills and currently generate a quarterly income. Bedroom one benefits from built-in wardrobes and an en‑suite bath; the second double bedroom also has storage and easy access to the modern shower room.
Sutton Heath is a private, secure residential estate within the operational RAF barracks perimeter, popular with families and downsizers for its low crime, local primary school and easy access to Woodbridge, heathland and nearby beaches. The bungalow is freehold and enjoys oil‑fired central heating and double glazing; the roof is clay tile and the exterior is tidy and low maintenance.
Practical points to note: broadband is FTTC and can be slow in places, heating runs on oil (with an externally fenced oil tank), and the property is subject to a modest monthly service charge (about £23/£276pa). There are also recorded easements affecting access. These factors are offset by the recently refreshed interior, generous parking, low council-tax banding and the income from the solar array.
Overall this bungalow suits buyers seeking comfortable, low‑maintenance single‑storey living close to countryside and coastal amenities — particularly downsizers or those wanting a flexible second home near Woodbridge.
2 bedroom bungalow for sale in Woodbridge Road, Sutton, Woodbridge, Suffolk, IP12 — £260,000 • 2 bed • 1 bath • 613 ft²
2 bedroom semi-detached bungalow for sale in Oxford Drive, Woodbridge, IP12 — £335,000 • 2 bed • 1 bath • 671 ft²
2 bedroom semi-detached bungalow for sale in Lingside, Martlesham Heath, Ipswich, IP5 — £400,000 • 2 bed • 2 bath • 1140 ft²
4 bedroom detached bungalow for sale in Shop Road, Clopton, IP13 6QP, IP13 — £575,000 • 4 bed • 2 bath • 1512 ft²
3 bedroom semi-detached house for sale in The Walks, Bromeswell, Woodbridge, IP12 — £535,000 • 3 bed • 1 bath • 1518 ft²
2 bedroom semi-detached bungalow for sale in Church Lane, Eyke, Woodbridge, IP12 — £290,000 • 2 bed • 1 bath • 737 ft²






















































