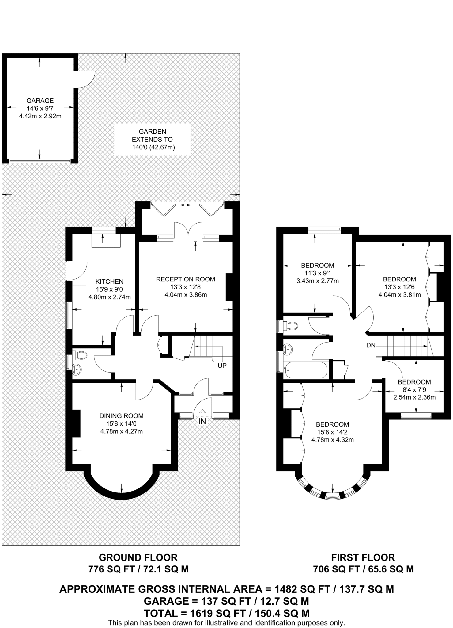
Four-bed family home with huge garden and garage, ideal for renovation.
- Spacious four-bedroom period semi with original Tudor Revival details
- Large circa 140' rear garden ideal for family use or extension
- Brick-built garage plus off-street driveway parking
- Approximately 1,619 sq ft of accommodation across multiple storeys
- Requires full renovation throughout; cosmetic and likely systems work needed
- Excellent potential to extend or reconfigure subject to consents
- Convenient for Pitshanger Lane amenities and Castle Bar Park station
- Freehold tenure in an affluent, low-crime neighbourhood
Set on a quiet Ealing street, this generously proportioned four-bedroom semi offers classic 1930s Tudor Revival charm and substantial outside space. Period features such as bay windows and exposed beams remain throughout, while two large reception rooms and an eat-in kitchen provide a comfortable family layout. The property is freehold and extends to about 1,619 sq ft.
The highlight is the expansive circa 140-foot rear garden, plus an electrically beneficial brick-built garage and off-street parking — rare for the area and ideal for families who value outdoor play and storage. Local amenities on Pitshanger Lane are within easy reach, Castle Bar Park station provides convenient links, and the A40 gives straightforward road access across London.
This house requires renovation throughout, presenting both an opportunity and a responsibility: modernisation will unlock the full potential and scope for structural extension subject to usual planning consents. Buyers should factor in refurbishment costs and project time; the property will particularly suit purchasers seeking a sympathetic restoration or a family wanting to personalise their long-term home.
Nearby schooling is strong, from good-rated primary options to highly regarded secondary schools, supporting family buyers. The neighbourhood is affluent with low crime, fast broadband and excellent mobile signal, making the house practical for everyday living while offering significant development upside for those prepared to invest.
4 bedroom semi-detached house for sale in Cleveland Road, Ealing, W13 — £1,295,000 • 4 bed • 1 bath • 1329 ft²
4 bedroom semi-detached house for sale in Cleveland Road, Ealing, London W13 0HF, W13 — £1,295,000 • 4 bed • 1 bath • 1361 ft²
5 bedroom house for sale in Tring Avenue, Ealing, W5 — £1,099,950 • 5 bed • 1 bath • 1527 ft²
5 bedroom semi-detached house for sale in Kent Gardens, Ealing, W13 — £1,595,000 • 5 bed • 2 bath • 1903 ft²
4 bedroom semi-detached house for sale in Carbery Avenue, Ealing, Ealing, W3 — £1,400,000 • 4 bed • 2 bath • 2094 ft²
4 bedroom semi-detached house for sale in Delamere Road, Ealing, W5 — £1,450,000 • 4 bed • 1 bath • 1831 ft²






















































