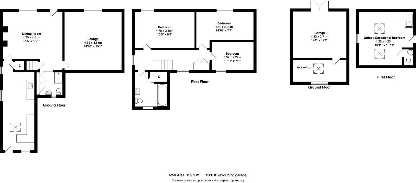
**Standout Features:**
- Charming stone-built semi-detached house in a sought-after village location
- Spacious layout with two reception rooms featuring beams and log burners
- Stunning modern kitchen extension with granite countertops and underfloor heating
- Three well-sized bedrooms plus versatile first-floor room with WC and kitchenette
- Private rear garden, beautifully landscaped with lawn and patio area
- Garage with additional workspace; off-street private parking available
- Easy access to Ripon and excellent local amenities, including schools
This stunning three-bedroom semi-detached home beautifully marries period charm with modern convenience in a desirable village setting. The heart of the home features two spacious reception rooms, each adorned with rustic beams and cozy log burners, creating inviting spaces for family gatherings. The contemporary kitchen extension impresses with sleek granite worktops and plenty of natural light, making it a dream for any home cook. A ground floor shower room complements the modern family bathroom on the first floor, ensuring comfort and practicality.
Outdoor enthusiasts will appreciate the sun-drenched private garden, perfect for relaxation and outdoor meals, complemented by a garage that not only offers storage but also a dedicated workspace. The first-floor ancillary space can serve multiple purposes—whether as an occasional bedroom or home office. Located in a low-crime area while falling within the catchment for top-rated Ripon Grammar School, this property is ideal for families seeking both comfort and community. With the unique combination of heritage features, functional living spaces, and potential for future enhancements, this home invites you to make it your own. Don’t miss out on this familial haven that effortlessly balances modern living and countryside charm!
3 bedroom semi-detached house for sale in St. Andrews Gate, Kirkby Malzeard, HG4 — £367,500 • 3 bed • 2 bath • 1019 ft²
4 bedroom semi-detached house for sale in Church Wood Close, Skelton-on-Ure, Ripon, North Yorkshire, HG4 — £530,000 • 4 bed • 3 bath • 1784 ft²
3 bedroom semi-detached house for sale in Silverwell Cottgae , Burnt Yates , HG3 — £329,950 • 3 bed • 1 bath • 947 ft²
4 bedroom detached house for sale in St. Andrews Gate, Kirkby Malzeard, HG4 — £559,950 • 4 bed • 2 bath • 1896 ft²
2 bedroom semi-detached house for sale in Kirkby Road, Kirkby Malzeard, Ripon, HG4 — £375,000 • 2 bed • 1 bath • 1049 ft²
3 bedroom house for sale in Manor Court, Kirkby Malzeard, Ripon, North Yorkshire, HG4 — £360,000 • 3 bed • 1 bath • 1372 ft²


































































