Chain-free three-bedroom home with garden and driveway, ready to view.
Chain free with guide price £210,000–£230,000
Recently redecorated and new carpets throughout
Gas central heating; boiler and radiators working
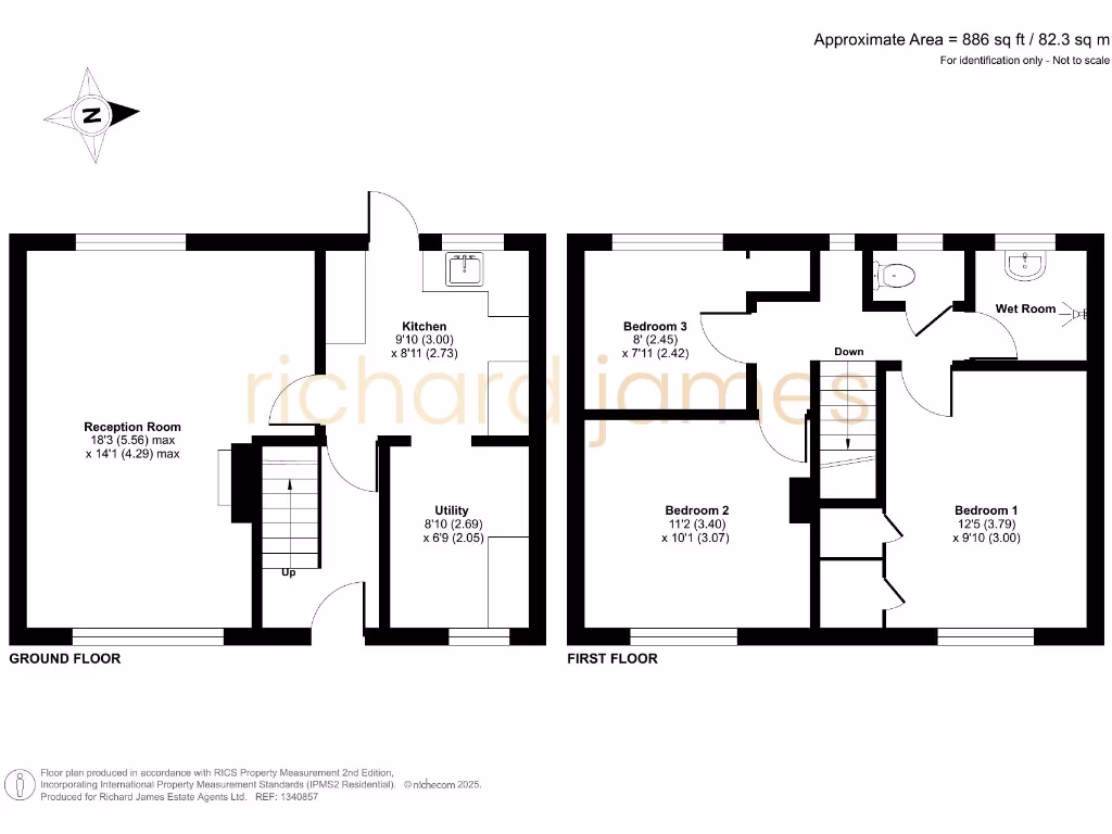
Kitchen plus separate utility room for practicality
Private rear garden; large front garden and driveway
Non-standard system-built construction; potential mortgage limits
Double glazing installed pre-2002; insulation likely inadequate
Local area: high crime and very deprived—consider location risks
Set on Milston Avenue in Penhill, this three-bedroom mid-20th-century terrace is offered chain free with a guide price of £210,000–£230,000. The house has been redecorated throughout, fitted with new carpets, upgraded uPVC double glazing and gas central heating, presenting a move-in ready layout with living/dining space, kitchen plus a separate utility room.
Upstairs there are three well-proportioned bedrooms, a modern shower room and a separate WC. Outside provides a private enclosed rear garden and a generous front garden with driveway parking and a small greenhouse—low-maintenance outdoor space with scope for planting or family use.
Important practical points are clear: the property is of non-standard (system-built) construction with assumed no wall insulation, and the double glazing dates from before 2002. The neighbourhood shows higher-than-average crime and significant area deprivation, so buyers should factor local social conditions into their decision and check mortgage availability for non-standard construction.
This home suits first-time buyers or investors seeking an immediately habitable three-bed with parking and outdoor space. With no onward chain and recent cosmetic improvements, it offers straightforward potential, but purchasers should arrange a survey and mortgage confirmation for system-built properties before proceeding.
3 bedroom end of terrace house for sale in Stapleford Way, Swindon, Wiltshire, SN2 — £220,000 • 3 bed • 1 bath • 932 ft²
3 bedroom terraced house for sale in Penhill Drive, Penhill, Swindon, SN2 — £230,000 • 3 bed • 1 bath • 747 ft²
3 bedroom terraced house for sale in Wardley Close, Swindon, SN3 — £200,000 • 3 bed • 1 bath • 915 ft²
3 bedroom end of terrace house for sale in Imber Walk, Swindon, SN2 — £220,000 • 3 bed • 2 bath • 725 ft²
3 bedroom terraced house for sale in Raleigh Avenue, Walcot, Swindon, SN3 — £215,000 • 3 bed • 1 bath • 875 ft²
3 bedroom terraced house for sale in Greenham Walk, Swindon, SN3 — £230,000 • 3 bed • 1 bath • 894 ft²


































































