Newly renovated end-terrace with large garden — ideal for first-time buyers..
- Chain-free three-bedroom end-of-terrace on larger-than-average plot
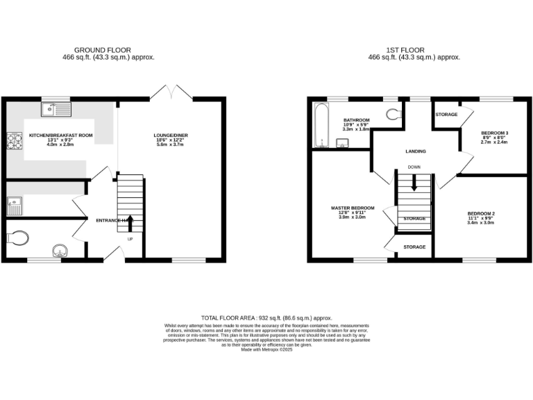
- Open-plan ground floor with garden access and wood flooring
- Modern shaker kitchen with breakfast bar and separate utility room
- Refurbished bathroom; three double bedrooms, principal with wardrobes
- EPC C and council tax band B; mains gas heating
- Laing Easi-Form non-standard construction — may affect mortgages
- Area has high crime and significant deprivation; view in person
- Average overall size ~932 sq ft; double glazing post-2002
A newly renovated three-bedroom end-of-terrace on a larger-than-average plot, offered chain-free and ready to move into. The ground floor is arranged as an open-plan living and dining area that flows to a substantial private garden — a strong draw for families and anyone who enjoys outdoor space. The modern shaker kitchen with a breakfast bar and a separate utility room add practical, everyday convenience.
Upstairs are three double bedrooms and a refurbished bathroom with a shower-over-bath; the principal bedroom includes built-in wardrobes. Recent works include double glazing (installed post-2002) and an updated heating system with a mains-gas boiler and radiators. The property has an EPC C rating and council tax band B, which help keep running costs comparatively low.
Buyers should note this is a Laing Easi-Form non-standard construction. While described as non-defective, this type of construction can affect mortgage options and may require lender approval or a specialist survey. The area shows high crime rates and significant deprivation indicators; local amenities and good schools are nearby, but prospective buyers should factor neighbourhood considerations into their decision.
This home suits first-time buyers and investors seeking a chain-free, move-in-ready house with garden potential. It also offers scope for modest cosmetic upgrades or landscaping to increase value, given its decent plot size and straightforward layout. Early viewing is recommended to assess the property and neighbourhood in person.
3 bedroom terraced house for sale in Wardley Close, Swindon, SN3 — £200,000 • 3 bed • 1 bath • 915 ft²
3 bedroom end of terrace house for sale in Queens Drive, Swindon, Wiltshire, SN3 — £258,000 • 3 bed • 1 bath • 802 ft²
3 bedroom terraced house for sale in Milston Avenue, Penhill, Swindon, SN2 — £220,000 • 3 bed • 1 bath • 886 ft²
3 bedroom terraced house for sale in Winterslow Road, Swindon, SN2 — £230,000 • 3 bed • 1 bath • 904 ft²
3 bedroom end of terrace house for sale in Constable Road, Stratton St Margaret, Swindon, SN2 — £285,000 • 3 bed • 1 bath • 990 ft²
3 bedroom terraced house for sale in Taplow Walk, Swindon, SN3 — £250,000 • 3 bed • 1 bath • 913 ft²


















































