Fully occupied cash-only HMO with strong income and immediate yield potential.
Fully licensed five-bedroom HMO with en-suite bathrooms in every room
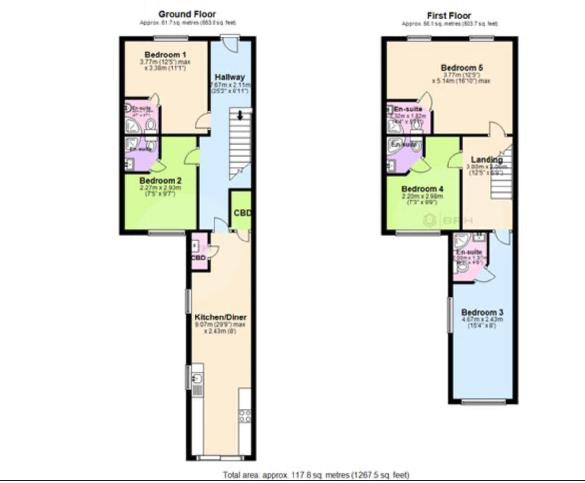
A fully licensed five-bedroom HMO on St Georges Road, refurbished internally and presented fully occupied. Each bedroom has an en-suite and the property currently produces £2,450pcm, giving an advertised ROI of about 14.4% — a strong yield for investor buyers seeking immediate income.
The house is mid-terrace, freehold, and arranged over multiple storeys with double glazing and gas central heating. Rear off-street parking and proximity to schools and local amenities increase tenant appeal. The property will be sold at auction and is offered to cash buyers only, so completion times will expect cash-ready purchasers.
Important considerations: the area shows high crime levels and very high deprivation, which can affect long-term rent growth and management costs. The building is solid brick with assumed no cavity insulation; the EPC sits at D, so future energy improvements may be needed. A buyer's premium applies (1% + VAT, minimum fees and staged payments) — factor this into total acquisition costs.
This is a hands-on buy-to-let opportunity aimed at investors wanting immediate rental income and high occupancy. It suits buyers prepared for HMO management in an inner-city market and who can proceed with cash at auction.
5 bedroom house of multiple occupation for sale in Ryde Street, Hull, East Riding Of Yorkshire, HU5 — £149,950 • 5 bed • 2 bath • 853 ft²
6 bedroom terraced house for sale in Hutt Street, Hull, HU3 — £225,000 • 6 bed • 3 bath • 1233 ft²
5 bedroom terraced house for sale in Chomley Street, HU3, Hull, HU3 — £155,000 • 5 bed • 3 bath • 1399 ft²
13 bedroom house share for sale in John St, Kingston Upon Hull, HU2 — £475,000 • 13 bed • 13 bath • 2077 ft²
5 bedroom terraced house for sale in Park Grove, Princes Avenue, Hull, HU5 — £225,000 • 5 bed • 5 bath
5 bedroom terraced house for sale in Boulevard, Hull, HU3 2UD, HU3 — £170,000 • 5 bed • 4 bath • 1600 ft²


































































