### Standout Features:
- **No Chain**: Quick move-in potential.
- **Three Bedrooms**: Spacious layout ideal for families or investors.
- **Modern Mews House**: Contemporary design with efficient heating and double glazing.
- **Off-Road Parking**: Includes visitors' spaces, enhancing convenience.
- **Location**: Nestled in desirable Alderley Edge, affluent community with great amenities and transport links.
- **Low Crime Rate**: Peaceful neighborhood.
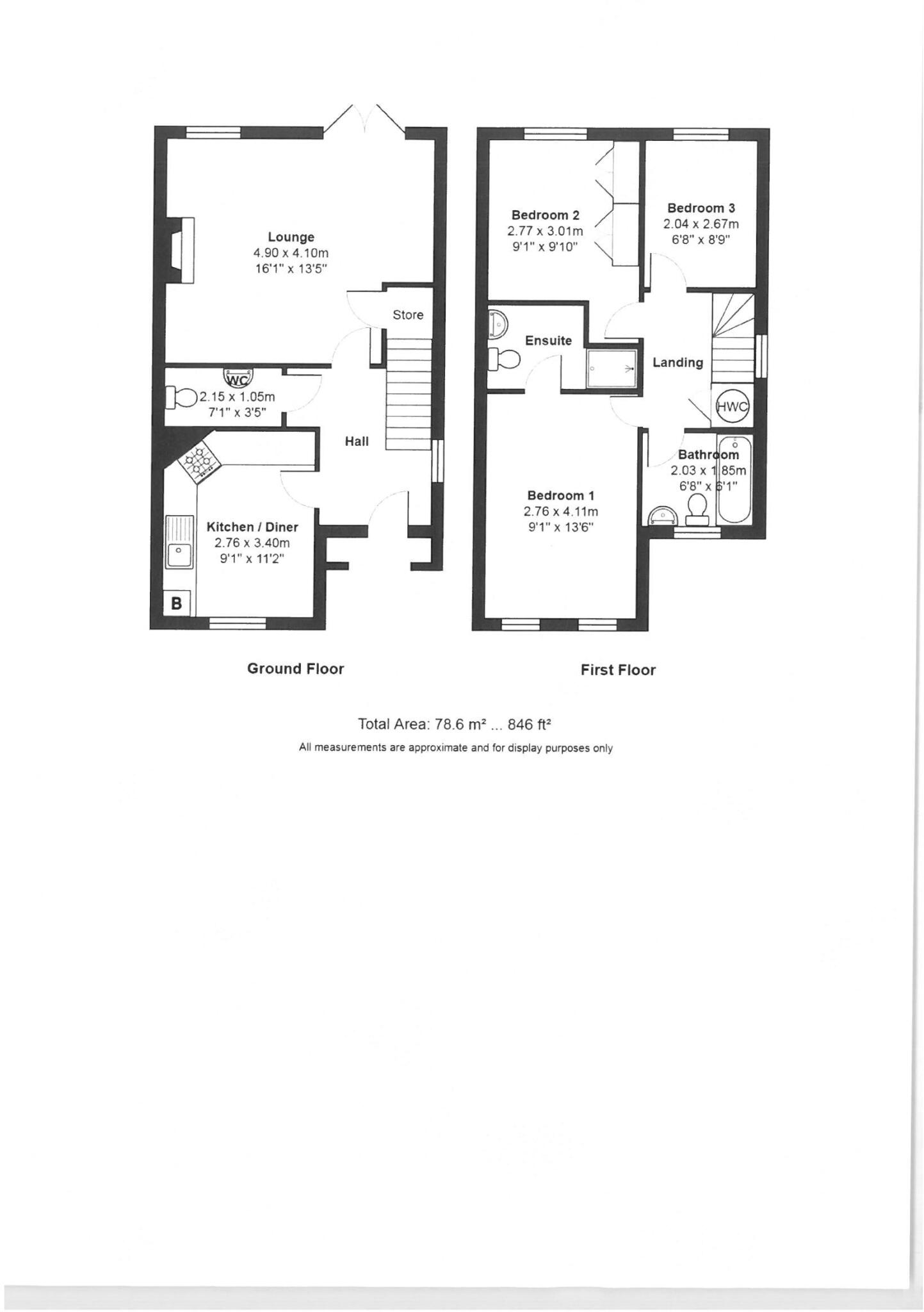
This beautifully presented three-bedroom Mews House in the sought-after Broadacre Place offers a unique blend of modern convenience and comfortable living. Priced at £395,000, it features a bright entrance hallway leading into a spacious reception room, perfect for both relaxing and entertaining. The open-plan kitchen and dining area is equipped with integrated appliances and ample workspace, catering to the aspiring chef.
Upstairs, find two generous double bedrooms and a single, with the principal bedroom boasting an en-suite shower room. The neutral décor provides a versatile backdrop for personalization, while the efficient heating and double-glazing add to the property's appeal. Secure off-road parking adds further value to this charming home.
Located in the affluent Cheshire village of Alderley Edge, enjoy easy access to local amenities, including boutique shops and restaurants, and to excellent schools, including Alderley Edge School for Girls and The Ryleys School. Leisure activities abound with golf courses, tennis clubs, and scenic walking trails nearby.
With excellent transport links to Manchester and Crewe via the nearby railway station, and Manchester Airport just a short drive away, this property is ideal for families or as a solid investment opportunity. Act quickly to explore all the charm and convenience this high-demand area has to offer!
2 bedroom mews property for sale in Knutsford Road, Alderley Edge, SK9 — £430,000 • 2 bed • 1 bath • 1385 ft²
3 bedroom mews property for sale in South Bank Close, Alderley Edge, SK9 — £550,000 • 3 bed • 2 bath • 1071 ft²
3 bedroom terraced house for sale in Knutsford Road, Alderley Edge, SK9 — £475,000 • 3 bed • 2 bath • 842 ft²
3 bedroom end of terrace house for sale in Moss Lane, Alderley Edge, Cheshire, SK9 — £725,000 • 3 bed • 3 bath • 2000 ft²
4 bedroom mews property for sale in Brook Lane, Alderley Edge, Cheshire, SK9 — £825,000 • 4 bed • 2 bath • 2125 ft²
2 bedroom mews property for sale in Tyler Street, Alderley Edge, SK9 — £350,000 • 2 bed • 1 bath • 600 ft²






























































































































