**Standout Features:**
- Spacious 2,125 sq ft modern mews house
- 4 generously sized bedrooms, including a principal suite with en suite and dressing room
- Beautifully landscaped gardens and rural views
- Within walking distance to the heart of Alderley Edge
- Secure gated community with low crime rates
- Single garage and additional parking space
- Average service charge and reasonable ground rent
**Property Summary:**
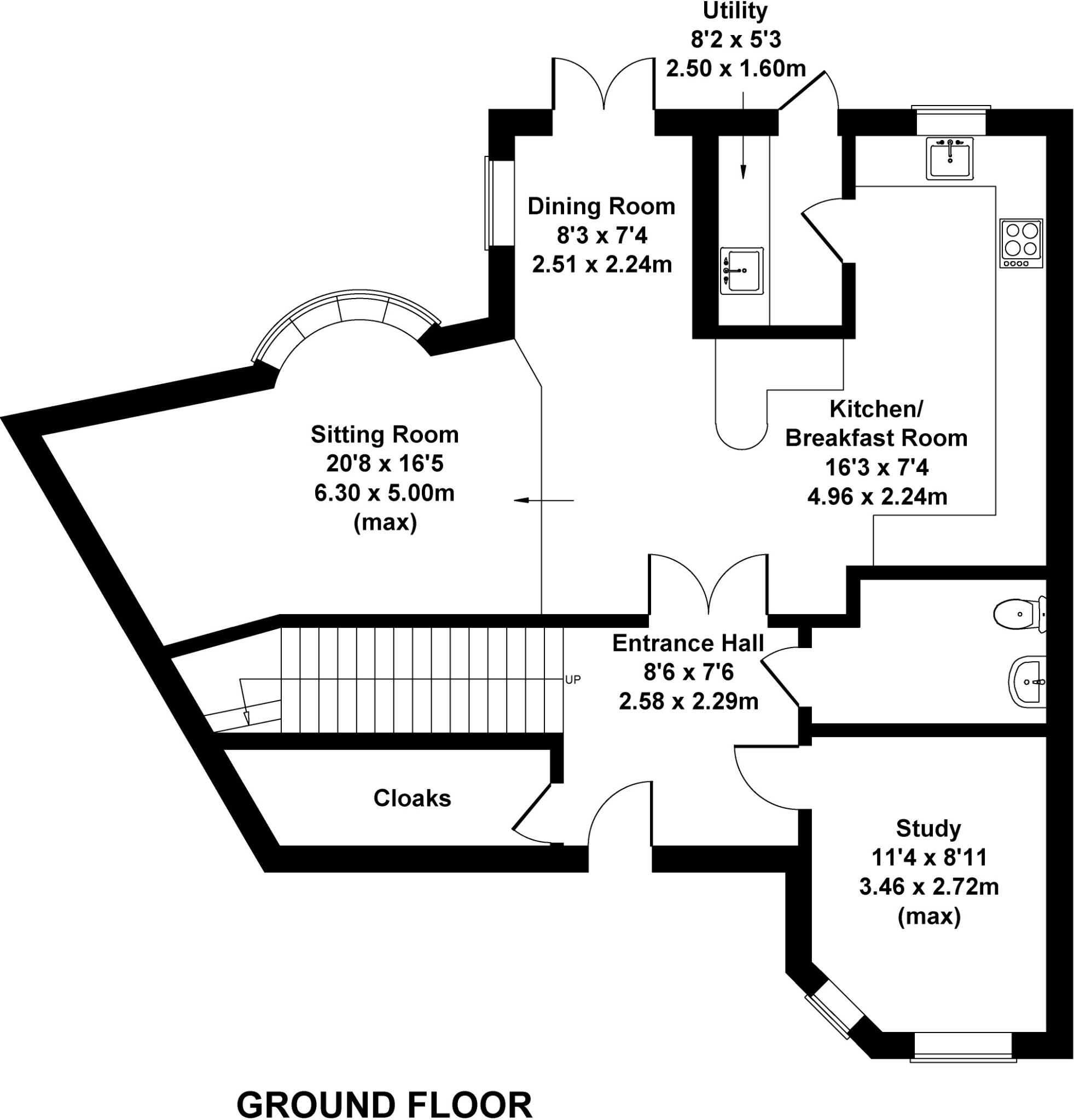
Discover a luxury living experience in this beautifully designed 4-bedroom mews house, set within a secure gated community. This contemporary property boasts 2,125 sq ft of adaptable space, ideal for families or investors looking for future rental potential. The well-planned interior features an inviting entrance, large drawing room with balcony, open-plan kitchen/breakfast area, and a dedicated study. The principal suite offers a private retreat with an en suite bath and dressing room, while additional bedrooms and a family bathroom accommodate guests comfortably.
Step outside to enjoy serene rural views from your landscaped garden, or take a stroll into Alderley Edge, where vibrant local culture and amenities await. Ideal for those seeking the tranquility of rural living without sacrificing proximity to city conveniences. Don’t miss out on this exclusive opportunity—properties in this desirable area are in high demand!
Please note that while the property is well-maintained, potential buyers should inquire about the service charge and council tax, as they may be considered relatively high for the area.
2 bedroom mews property for sale in Knutsford Road, Alderley Edge, SK9 — £430,000 • 2 bed • 1 bath • 1385 ft²
5 bedroom detached house for sale in Macclesfield Road, Alderley Edge, Cheshire, SK9 — £2,250,000 • 5 bed • 3 bath • 4245 ft²
3 bedroom town house for sale in Edge View Crescent, Merrymans Lane, Alderley Edge, SK9 — £550,000 • 3 bed • 3 bath • 1404 ft²
4 bedroom mews property for sale in Congleton Road, Nether Alderley, Macclesfield, SK10 — £799,950 • 4 bed • 3 bath • 1630 ft²
3 bedroom town house for sale in Edge View Crescent, Merrymans Lane, Alderley Edge, SK9 — £499,995 • 3 bed • 3 bath • 968 ft²
4 bedroom detached house for sale in Macclesfield Road, Alderley Edge, Cheshire, SK9 — £2,450,000 • 4 bed • 4 bath • 5301 ft²


































































































