**Standout Features:**
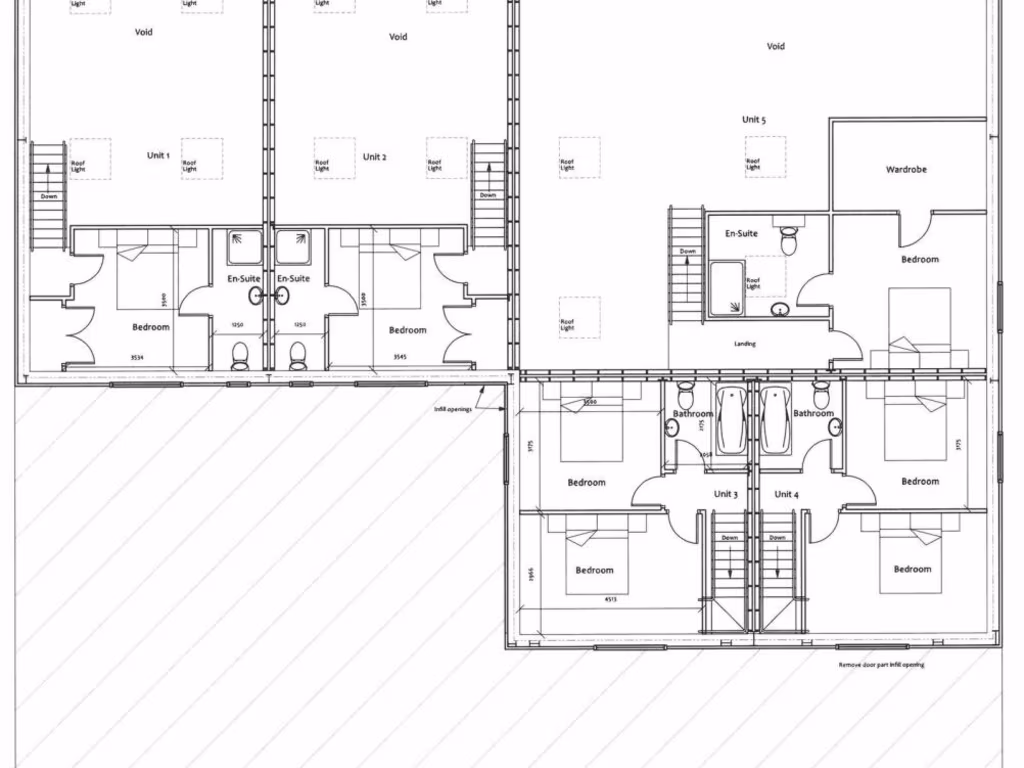
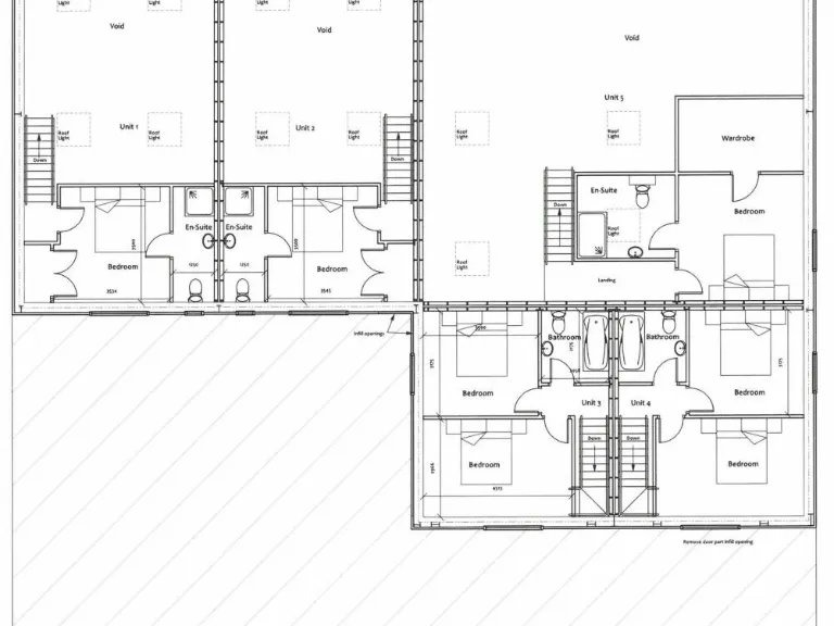
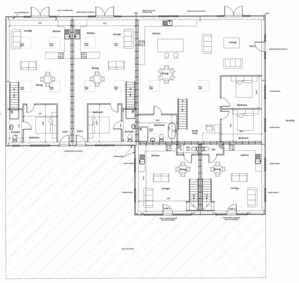
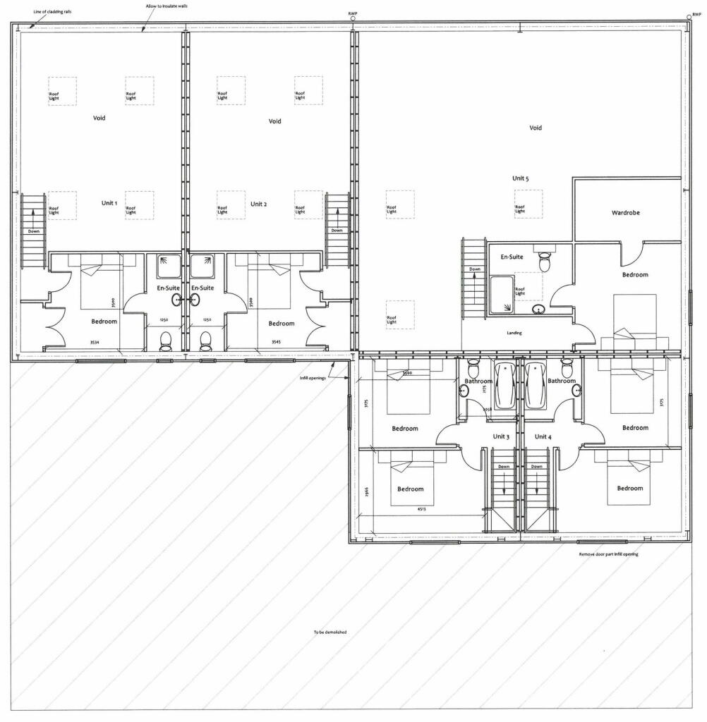
- **Conversion Potential:** Approved for five residential dwellings.
- **Spacious Design:** An L-shaped barn offering 4,015 sq ft (372.8 m²).
- **Location:** Set in the picturesque village of Upwell, nestled between Wisbech and Downham Market.
- **Low Crime Rate:** A safe, friendly community ideal for families.
- **Nearby Amenities:** Excellent local schools and essential services within cycling distance.
**Summary:**
This unique 11-bedroom barn conversion in the charming village of Upwell presents a rare investment opportunity. With approved planning permission for five residential units, including four 2-bedroom and one 3-bedroom dwelling, it offers potential for transformation into lucrative rental properties or family homes. The expansive structure, totaling 4,015 sq ft, boasts steel-frame construction and a concrete floor, providing a solid foundation for your vision.
Surrounded by tranquil agricultural scenery, this property offers a peaceful retreat while being conveniently located near essential amenities and local schools. Although the buyer will need to undertake some renovations, including the demolition of part of the front canopy and managing utility separations, the development is free from CIL payments due to existing council regulations.
Don’t miss out on this exceptional chance to create something special in a highly sought-after area. Secure this property today and imagine the potential benefits it could unlock for your future!
5 bedroom barn conversion for sale in Chalk Road, Upwell, Wisbech, PE14 — £650,000 • 5 bed • 4 bath • 1146 ft²
Land for sale in Barn Off Collett's Bridge Farm, Kirkham's Lane, Elm, Wisbech, Cambridgeshire, PE14 0EG, PE14 — £225,000 • 1 bed • 1 bath • 16117 ft²
Land for sale in A great opportunity to acquire a Barn with planning consent for residential conversion, PE14 — £140,000 • 1 bed • 1 bath • 1120 ft²
House for sale in St. Peters Farm Barn, Middle Drove, Marshland St James, Wisbech, Norfolk, PE14 — £125,000 • 1 bed • 1 bath • 16553 ft²
6 bedroom barn conversion for sale in St. Johns Fen End, PE14 — £635,000 • 6 bed • 4 bath • 3591 ft²
Land for sale in Burrowmoor Road, March, PE15 — £110,000 • 1 bed • 1 bath • 12917 ft²






















