SE6 3EW - 3 bed semi detached family home in Elfrida Crescent, SE6 3EW

View on Property Piper

3 bedroom semi-detached house for sale in Elfrida Crescent, London, SE6

Summary - 45 ELFRIDA CRESCENT LONDON SE6 3EW

3 bed 1 bath Semi-Detached

Three bedrooms, garden and outbuilding near three stations — good schools close by.
Freehold three-bedroom semi-detached house, ideal for families
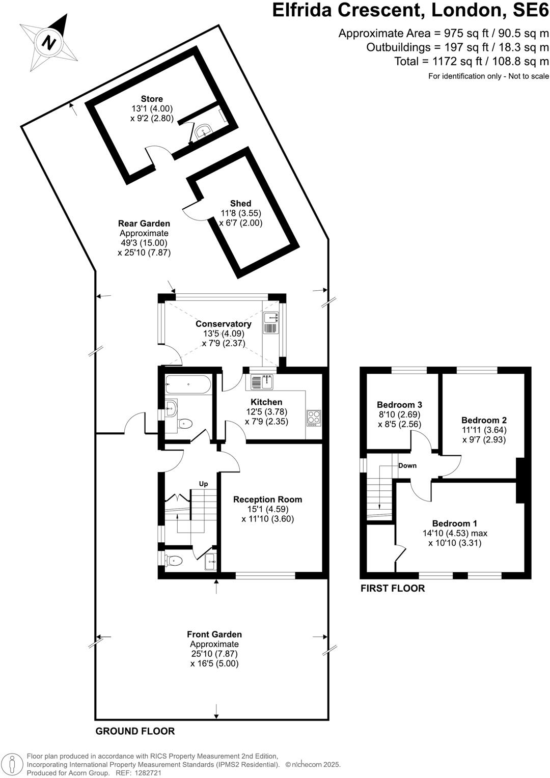
A well-proportioned three-bedroom semi-detached home offering practical family living in a popular SE6 location. The ground floor provides a large lounge-diner, fitted kitchen, conservatory and a separate WC, while the first floor houses three good-sized bedrooms and loft access. The rear garden is modest but useful, and an outbuilding with power adds storage or workspace potential.

Transport and local amenities are strong selling points: three rail stations are within walking distance and Beckenham Place Park is nearby. Several primary and secondary schools rated Good are close by, making the house sensible for families who need local schooling and green space.

The property dates from the 1930–49 period and shows mid‑20th-century character but will suit buyers willing to modernise in places. The glazing is double but install date is unknown; there is a single bathroom plus separate WC which may be limiting for larger households. The area scores as very deprived, which can affect local services and resale dynamics.

Practical positives include freehold tenure, mains gas central heating, fast broadband and excellent mobile signal. Council tax is described as affordable. This home will appeal to families seeking a sensible, well-located starter-or-step-up house with clear potential for improvement.

Property Details

Image Descriptions

Floorplan Description

Rooms

Textual Property Features

Target Audience

AI Tags

Detected Visual Features

EPC Details

Nearby Schools

Nearest Bars And Restaurants

,,,,}

Nearest General Shops

,,}

Nearest Grocery shops

,,}

Nearest Supermarkets

,,}

Nearest Religious buildings

,,}

Nearest Medical buildings

,,,}

Nearest Airports

,,}

Nearest Leisure Facilities

,,,,}

Nearest Tourist attractions

,,}

Nearest Train stations

,,,,}

Nearest Bus stations and stops

,,,,}

Nearest Hotels

,,}

Tags

Local Market Stats

AirBnB Data

Similar Properties

Meta

High Res Images

Compatible Images

Low res Images

Thumbnails

Raw Images

High Res Floorplan Images

Compatible Floorplan Images

Low res Floorplan Images

FloorplanImages Thumbnail

Raw Floorplan Images