Chain-free three-bed village home with garden, garage and strong renovation potential.
Three bedrooms with good proportions
Set on the edge of sought-after St Martins, this three-bedroom semi-detached home offers well‑planned accommodation and genuine renovation potential. The property is chain free and benefits from gas central heating, double glazing and a south-facing rear garden with useful outbuildings and garage parking.
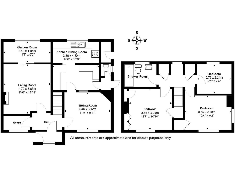
Internally the layout is practical: entrance porch, reception hall with store, a principal living room, separate sitting room, garden room, kitchen/diner and cloakroom on the ground floor. Upstairs are three good-sized bedrooms, a shower room and further storage. The house measures approximately 881 sq ft and sits on a decent plot for landscaping or extension subject to checks.
The property requires updating throughout — cosmetic and likely modernisation works are needed, and walls are solid brick with no built-in insulation (as built). Buyers should budget for refurbishment, possible kitchen and bathroom replacement, and checks on services and any compliance issues. Council Tax Band A and no flood risk are practical benefits for cost-conscious buyers.
This will suit families or buyers seeking a versatile village home they can adapt and improve. With strong local schools, easy A483 road links and nearby Llangollen Canal walks, the location combines rural character with commuter convenience. Sold freehold and available with no onward chain, it presents a straightforward renovation opportunity in a popular village setting.
3 bedroom semi-detached house for sale in Mount Terrace, Ellesmere Road, St. Martins, Oswestry, SY11 — £220,000 • 3 bed • 1 bath • 1114 ft²
3 bedroom semi-detached house for sale in Green Lane, St. Martins, SY11 — £200,000 • 3 bed • 1 bath • 883 ft²
3 bedroom semi-detached house for sale in Garden Village, St. Martins, Oswestry, SY11 — £229,500 • 3 bed • 1 bath • 924 ft²
3 bedroom semi-detached house for sale in Oak Drive, St. Martins, Oswestry, Shropshire, SY11 — £187,500 • 3 bed • 1 bath • 1030 ft²
3 bedroom house for sale in Moors Bank, St. Martins., SY10 — £225,000 • 3 bed • 1 bath • 1143 ft²
2 bedroom house for sale in Laburnum Close, St. Martins, Oswestry., SY11 — £175,000 • 2 bed • 1 bath • 625 ft²














































