Central RG1 fixer with garden and excellent transport links.
Chain-free freehold Victorian mid-terrace near Reading station and town centre
This Victorian mid-terrace in RG1 offers straightforward access to Reading station and the town centre, making it a strong rental or refurbishment prospect. The property is freehold and chain-free, easing a quick purchase and project start. Double-glazed windows and mains gas central heating provide useful existing comforts.
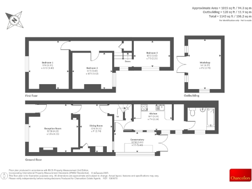
Set over two main floors with two reception rooms, three bedrooms and one bathroom, the house benefits from period character such as bay window and brickwork, plus an outbuilding and small private garden. The solid brick walls likely lack modern insulation, so consider upgrade costs when planning works.
The house requires renovation throughout — cosmetic and potentially some structural or insulation improvements — which creates scope to add value for resale or long-term letting. Local amenities, good broadband and excellent mobile signal suit student or young professional tenants, while nearby high-performing secondary schools add broader appeal.
Practical points: no flood risk, low local crime, and affordable council tax. The property footprint (about 1,142 sq ft) is average for its type; buyers should allow budget for updating heating efficiency and interior refurbishment.
3 bedroom terraced house for sale in Cannon Street, Reading, Berkshire, RG1 — £280,000 • 3 bed • 1 bath • 637 ft²
3 bedroom terraced house for sale in Central Reading, Berkshire, RG1 — £325,000 • 3 bed • 1 bath • 865 ft²
3 bedroom terraced house for sale in Wolseley Street, Reading, Berkshire, RG1 — £290,000 • 3 bed • 1 bath • 678 ft²
3 bedroom terraced house for sale in Hart Street, Reading, RG1 — £240,000 • 3 bed • 1 bath • 725 ft²
3 bedroom terraced house for sale in Stanley Street, Reading, Berkshire, RG1 — £300,000 • 3 bed • 1 bath • 936 ft²
3 bedroom terraced house for sale in Catherine Street, Reading, Berkshire, RG30 — £335,000 • 3 bed • 1 bath • 915 ft²


























































































