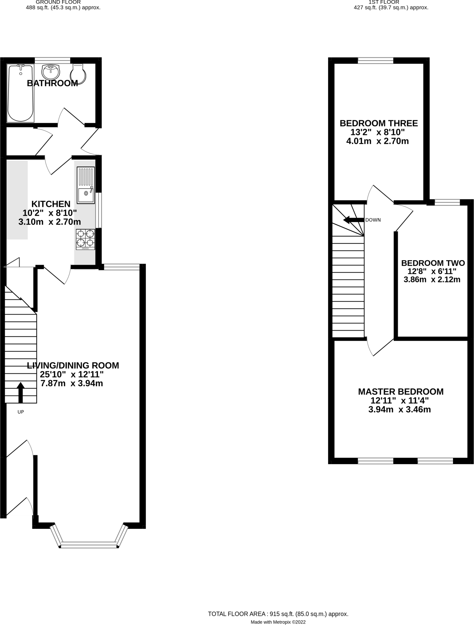
Chain-free Victorian terrace with three bedrooms, refitted kitchen and loft conversion potential near Reading stations..
Three double bedrooms and 25ft bay-fronted living/dining room
A chain-free Victorian mid-terrace offering three double bedrooms and a long 25ft living/dining room — ideal for first-time buyers seeking period character close to Reading town centre. The house benefits from a recently refitted kitchen and bathroom, double glazing, high ceilings and bay windows that create plenty of natural light. At about 915 sq ft the layout is practical for everyday family life, with fast broadband and excellent mobile signal supporting home working.
There is clear scope to add value: a loft conversion (subject to consent) could increase living space, and modest cosmetic updating would modernise the interior. The rear garden is low maintenance and sunny, and on-street parking is readily available for residents and visitors. Freehold tenure and no onward chain make for a straightforward purchase process.
Buyers should note material considerations: the property sits in a higher-crime, economically deprived area and has solid brick walls likely without cavity insulation, so thermal upgrades may be required. The plot and garden are small, and road-side parking only. Overall condition is lived-in with opportunity for refurbishment rather than a full structural rebuild.
3 bedroom terraced house for sale in Salisbury Road, Reading, Berkshire, RG30 — £310,000 • 3 bed • 1 bath • 1086 ft²
3 bedroom terraced house for sale in Connaught Road, Reading, RG30 — £325,000 • 3 bed • 1 bath • 805 ft²
3 bedroom terraced house for sale in Belmont Road, Reading, Berkshire, RG30 — £310,000 • 3 bed • 1 bath • 835 ft²
3 bedroom terraced house for sale in Milman Road, Reading, Berkshire, RG2 — £325,000 • 3 bed • 1 bath • 649 ft²
4 bedroom terraced house for sale in Catherine Street, Reading, RG30 — £340,000 • 4 bed • 1 bath
3 bedroom terraced house for sale in Kent Road, Reading, Berkshire, RG30 — £300,000 • 3 bed • 1 bath • 786 ft²


































