TW2 5HF - 3 bedroom end of terrace house for sale in Fulwell Park Ave…

View on Property Piper

3 bedroom end of terrace house for sale in Fulwell Park Avenue, Twickenham, TW2

Summary - 7 FULWELL PARK AVENUE TWICKENHAM TW2 5HF

3 bed 1 bath End of Terrace

**Standout Features:**
- Charming 1930's end-of-terrace family home
- Bright with modern fitted kitchen
- Three well-proportioned bedrooms
- Attractive rear garden with mature plants
- Rear garage accessible via service road
- Chain-free sale, enabling a quick move
- Excellent local schools rated 'Good' or 'Outstanding'

This beautifully presented 1930’s end-of-terrace home strikes a perfect balance between classic charm and modern convenience. Bright and inviting, it features an open living space leading into a contemporary kitchen, ideal for family gatherings. With three bedrooms and a well-maintained garden full of mature plants, it provides an excellent outdoor space for relaxation or playing with kids. The property comes with the added bonus of a garage at the rear, accessible from a service road, enhancing practicality and utility.

Positioned on a friendly street, this home is within easy reach of excellent schools, making it a fantastic choice for families. Located just a short walk from shops, bars, and parks, it offers convenience without sacrificing tranquility. With a chain-free sale, you can enjoy a straightforward buying process. Don’t miss out on this golden opportunity to secure a lovely family home that also presents scope for future renovations or extensions to truly make it your own!

Property Details

Brochure Descriptions

Image Descriptions

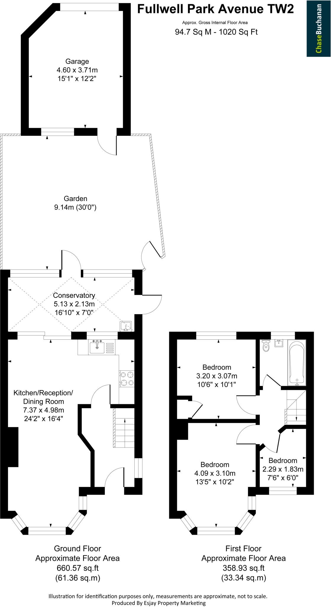
Floorplan Description

Rooms

Textual Property Features

Detected Visual Features

EPC Details

Nearby Schools

Nearest Bars And Restaurants

,,,,}

Nearest General Shops

,,}

Nearest Grocery shops

,,}

Nearest Supermarkets

,,}

Nearest Religious buildings

,,}

Nearest Medical buildings

,,,}

Nearest Airports

,}

Nearest Leisure Facilities

,,,,}

Nearest Tourist attractions

,,}

Nearest Train stations

,,,,}

Nearest Bus stations and stops

,,,,}

Nearest Hotels

,,}

Tags

Local Market Stats

AirBnB Data

Similar Properties

Meta

High Res Images

Compatible Images

Low res Images

Thumbnails

Raw Images

High Res Floorplan Images

Compatible Floorplan Images

Low res Floorplan Images

FloorplanImages Thumbnail

Raw Floorplan Images