Single‑storey living with garage, large garden and solar panels in a quiet cul‑de‑sac.
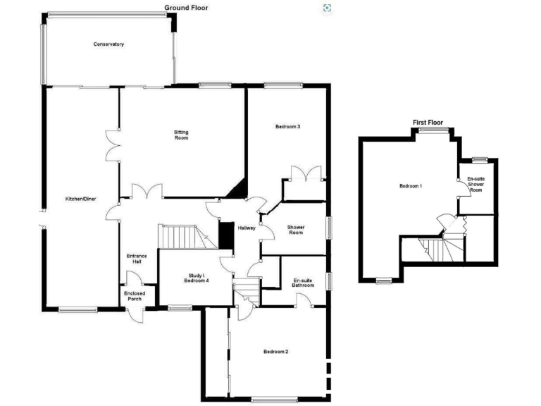
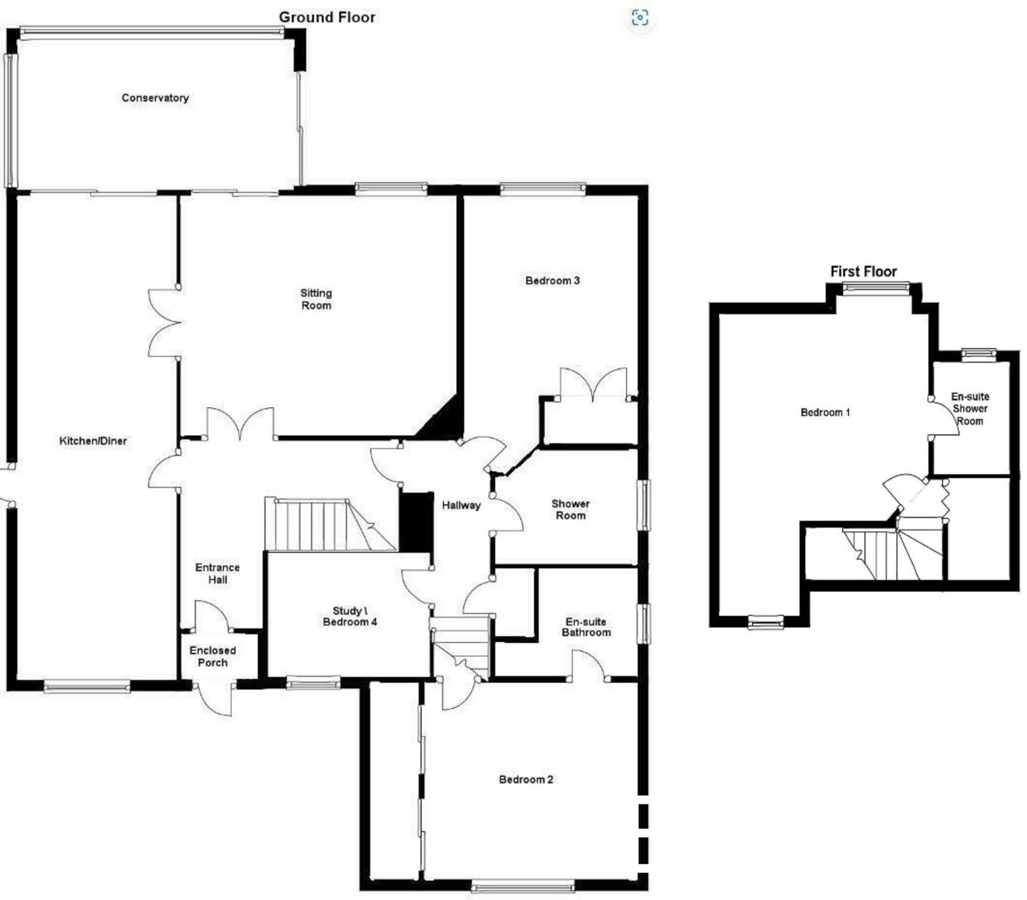
Four bedrooms including two large first-floor doubles with ensuites
Set at the end of a sought-after cul-de-sac on the outskirts of Haverhill, this spacious four-bedroom detached bungalow offers single‑storey living with the benefit of two large first‑floor bedrooms and three bathrooms. The layout suits families, multi-generational households or anyone seeking easy, step‑free access with generous reception space, a conservatory and a large, well‑maintained garden for outdoor living.
Practical features include an integral double garage with electric roll‑up door, a wide block‑paved driveway for multiple vehicles, solar panels to reduce running costs, and fast broadband — useful for home working. The kitchen/diner and sizeable sitting room provide comfortable everyday living and the conservatory opens onto secluded patios, decking and lawned areas framed by mature planting.
The property is modern in style (constructed c.1996–2002) and has been well kept, but note some original double glazing dates from before 2002 and may be due for future replacement. Council Tax Band E is above average for the area. Overall this is a low‑risk, low‑crime village setting with good links to Haverhill amenities and direct transport routes towards Cambridge.
4 bedroom detached bungalow for sale in Withersfield Road, Haverhill, CB9 — £550,000 • 4 bed • 2 bath • 2065 ft²
3 bedroom detached bungalow for sale in Malin Close, Haverhill, CB9 — £395,000 • 3 bed • 1 bath • 1083 ft²
3 bedroom detached bungalow for sale in Shotley Mews, Haverhill, CB9 — £475,000 • 3 bed • 2 bath • 1184 ft²
4 bedroom detached house for sale in Cleves Road, Haverhill, CB9 — £450,000 • 4 bed • 2 bath • 1442 ft²
3 bedroom detached bungalow for sale in Malin Close, Haverhill, CB9 — £350,000 • 3 bed • 1 bath • 570 ft²
2 bedroom semi-detached bungalow for sale in Chalkstone Way, Haverhill, CB9 — £295,000 • 2 bed • 1 bath • 764 ft²










































































