EH12 5QQ - 2 bedroom flat for sale in Murrayfield Park, 37 Corstorphin…

View on Property Piper

2 bedroom flat for sale in Murrayfield Park, 37 Corstorphine Road, Edinburgh, EH12

Summary - 37, CORSTORPHINE ROAD, EDINBURGH EH12 5QQ

2 bed 2 bath Flat

**Standout Features:**
- Newly renovated flat in an exclusive development
- Off-street parking and access to communal grounds
- Open-plan living space with large windows and balcony
- Gorgeous views over the Water of Leith and Murrayfield Stadium
- High-quality finishes including premium kitchens and engineered wood flooring
- Two spacious double bedrooms with en suite in the principal bedroom
- Excellent mobile signal and fast broadband access

**Potential Downsides:**
- Located in an area classified as very deprived, which may impact lifestyle choices
- Ongoing development with no in-person viewings currently available, requiring scheduled private meetings for inquiries

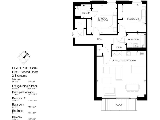
Discover an exceptional living opportunity in one of Edinburgh's most sought-after neighborhoods, EH12 5QQ. This newly renovated two-bedroom flat boasts an impressive 890 sq ft of contemporary living space, showcasing an expansive open-plan kitchen, dining, and living area that seamlessly connects to a private balcony with stunning views of the Water of Leith and Murrayfield Stadium. Both bedrooms are thoughtfully positioned for peace and privacy, with the principal featuring an en suite.

Ideal for first-time buyers or investors looking for a stylish city retreat or a low-maintenance ‘lock up and leave’ home, this property has been finished to a high standard with all modern conveniences, including premium fittings and ample storage, ensuring comfort and luxury. With easy accessibility via lift and off-street parking, this apartment not only offers a comfortable contemporary lifestyle but also the flexibility for future renovations or expansions.

Don't miss your chance to be part of this exciting new development—reach out for a private discussion to explore this unique opportunity before it's gone!

Property Details

Image Descriptions

Floorplan Description

Rooms

Textual Property Features

Detected Visual Features

Nearest Bars And Restaurants

,,,,}

Nearest General Shops

,,}

Nearest Grocery shops

,,}

Nearest Supermarkets

,,}

Nearest Religious buildings

,,}

Nearest Medical buildings

,,,}

Nearest Airports

}

Nearest Leisure Facilities

,,,,}

Nearest Tourist attractions

,,}

Nearest Train stations

,,,,}

Nearest Bus stations and stops

,,,,}

Nearest Hotels

,,}

Tags

Local Market Stats

AirBnB Data

Similar Properties

Meta

High Res Images

Compatible Images

Low res Images

Thumbnails

Raw Images

High Res Floorplan Images

Compatible Floorplan Images

Low res Floorplan Images

FloorplanImages Thumbnail

Raw Floorplan Images