EH12 5QQ - 2 bedroom flat for sale in Murrayfield Park, 37 Corstorphin…

View on Property Piper

2 bedroom flat for sale in Murrayfield Park, 37 Corstorphine Road, Edinburgh, EH12

Summary - 37, CORSTORPHINE ROAD, EDINBURGH EH12 5QQ

2 bed 2 bath Flat

**Standout Features:**
- Newly renovated, modern flat in an exclusive development
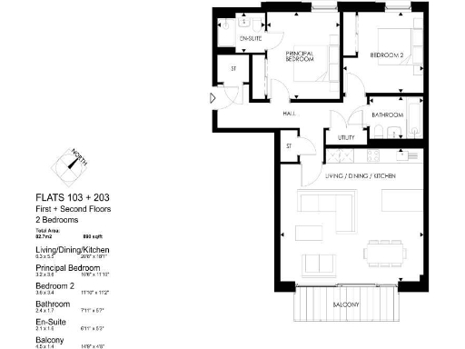
- 2 spacious bedrooms and 2 bathrooms
- Bright open-plan living area with large south-facing windows
- Stunning views of the Water of Leith, Roseburn Park, and Pentland Hills
- Off-street parking available
- Chain free with a freehold tenure
- Excellent mobile signal and ultrafast broadband

**Concise Summary:**
Introducing a beautifully renovated 2-bedroom flat in the exclusive Murrayfield Park—a stunning new development by Rennick Property. Spanning 890 sq ft, this bright and airy home features an expansive open-plan kitchen/living/dining area, capturing breathtaking views over the Water of Leith and Roseburn Park through its large south-facing windows. Both bedrooms offer generous space with an en suite in the principal bedroom, enhancing comfort and privacy.

Set in a desirable postcode (EH12 5QQ), this property presents a unique opportunity for families, investors, or anyone seeking a stylish city pad. With off-street parking and the option for a garden or balcony, outdoor space complements modern urban living. The location provides excellent amenities including parks, public transport, and recreational options. This chain-free flat boasts exceptional comfort and contemporary design, ready for immediate occupancy. Don’t miss your chance to secure a property that perfectly combines luxury, location, and lifestyle. Schedule a private discussion today—these coveted apartments won’t last long!

Property Details

Image Descriptions

Floorplan Description

Rooms

Textual Property Features

Detected Visual Features

Nearest Bars And Restaurants

,,,,}

Nearest General Shops

,,}

Nearest Grocery shops

,,}

Nearest Supermarkets

,,}

Nearest Religious buildings

,,}

Nearest Medical buildings

,,,}

Nearest Airports

}

Nearest Leisure Facilities

,,,,}

Nearest Tourist attractions

,,}

Nearest Train stations

,,,,}

Nearest Bus stations and stops

,,,,}

Nearest Hotels

,,}

Tags

Local Market Stats

AirBnB Data

Similar Properties

Meta

High Res Images

Compatible Images

Low res Images

Thumbnails

Raw Images

High Res Floorplan Images

Compatible Floorplan Images

Low res Floorplan Images

FloorplanImages Thumbnail

Raw Floorplan Images