Newly renovated central home with communal garden access near Earl’s Court station.
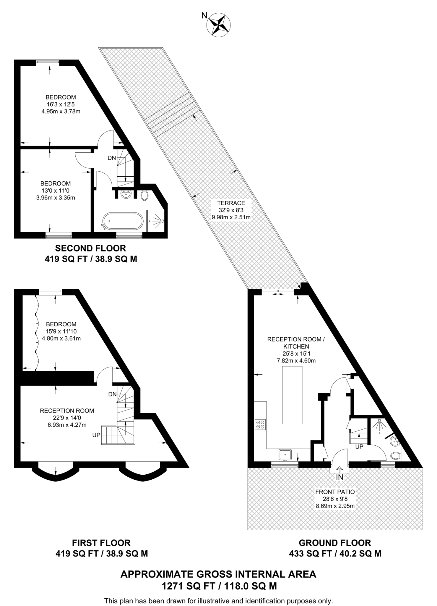
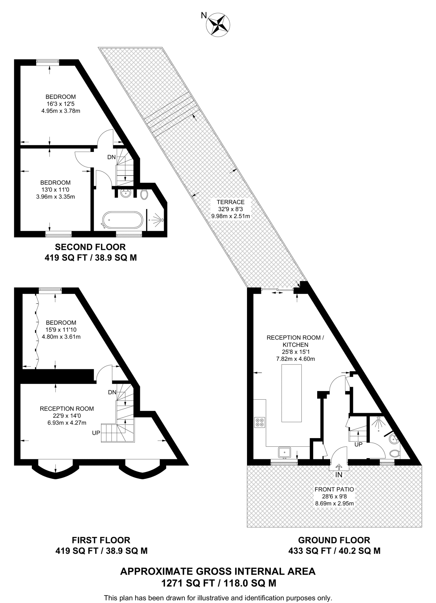
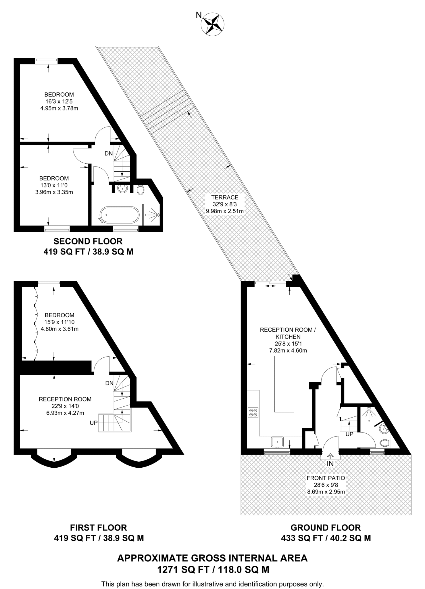
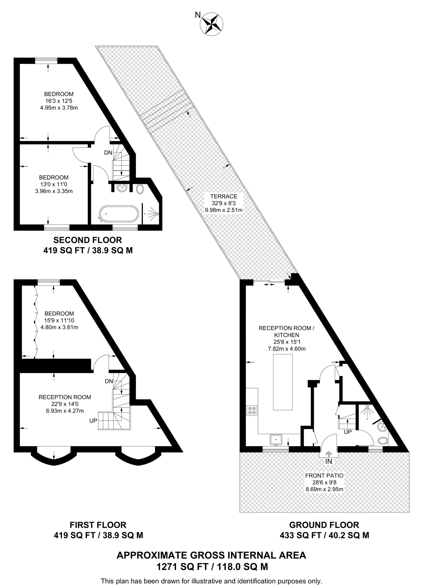
Freehold double-fronted end-terrace with 3 bedrooms
This double-fronted freehold end-of-terrace sits in the heart of Kenway Village, moments from Earl’s Court station and local amenities. The house has been newly renovated throughout and presents bright, contemporary living spaces including a large open-plan kitchen/reception and modern bathroom fittings. Underfloor heating and a mains gas boiler add efficient comfort, and double glazing helps with sound and warmth.
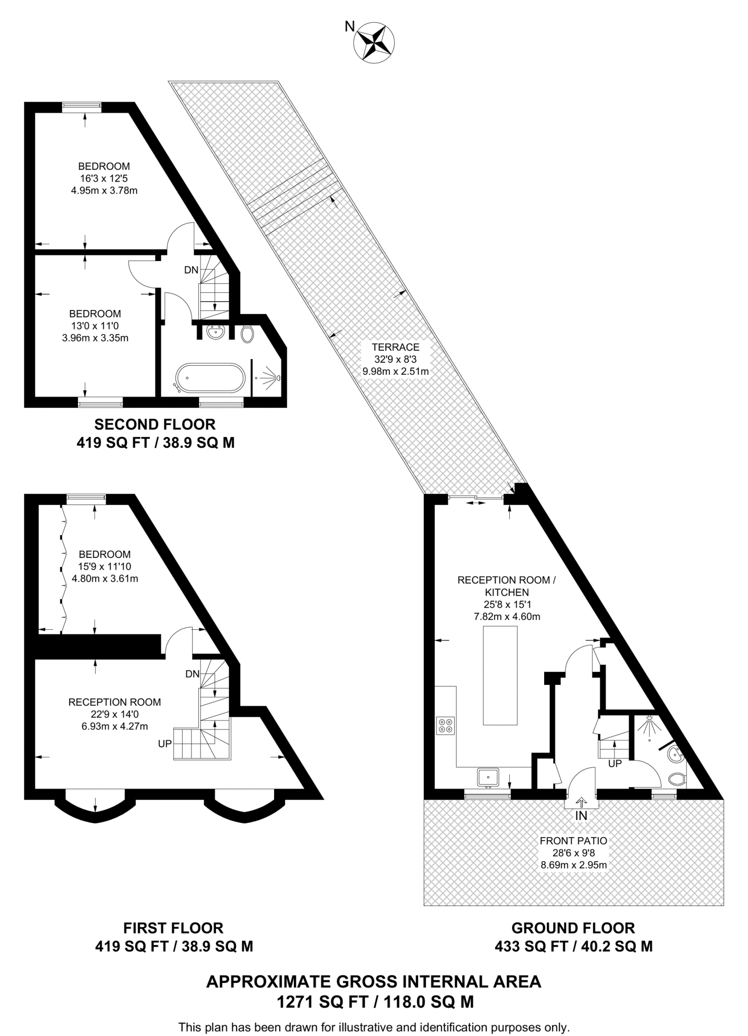
The layout spreads over multiple floors with a reception room and bedroom on the ground floor and two further bedrooms upstairs, making it suitable for a family or professionals wanting separate living and sleeping zones. The property benefits from access to a well-kept communal garden square and includes approximately 1,271 sq ft of accommodation, offering generous room sizes for the area.
Buyers should note some practical considerations: the plot is small and the building dates from the 1950s–60s with solid brick walls and no confirmed insulation upgrades. The surrounding area records very high crime and local deprivation indicators, which may influence family or rental decisions despite the central location. Broadband and mobile signal are strong, and a dense mix of shops, restaurants and schools are within easy walking distance.
Overall, this house is a polished, move-in-ready central London home with good transport links and communal outdoor space. It will particularly suit buyers seeking modern interiors and convenient city living who are comfortable with the realities of an inner-city neighbourhood.
3 bedroom house for sale in Wallgrave Road,
Earls Court, SW5 — £2,250,000 • 3 bed • 2 bath • 1502 ft²
2 bedroom terraced house for sale in Kenway Road, Kenway Village, London, SW5 — £1,000,000 • 2 bed • 1 bath • 920 ft²
2 bedroom terraced house for sale in Kenway Road, Earls Court, SW5 — £1,000,000 • 2 bed • 2 bath • 859 ft²
3 bedroom terraced house for sale in Wallgrave Road, London SW5 — £2,250,000 • 3 bed • 2 bath • 1502 ft²
2 bedroom detached house for sale in Kenway Road, Kensington, London, SW5 — £1,000,000 • 2 bed • 1 bath • 827 ft²
5 bedroom terraced house for sale in Old Manor Yard, Earls Court, London, SW5 — £1,900,000 • 5 bed • 4 bath • 1547 ft²


































































































































































































































































































































































































































































































































































































































































































