Characterful two-bed freehold with parking and roof-terrace potential near High Street amenities.
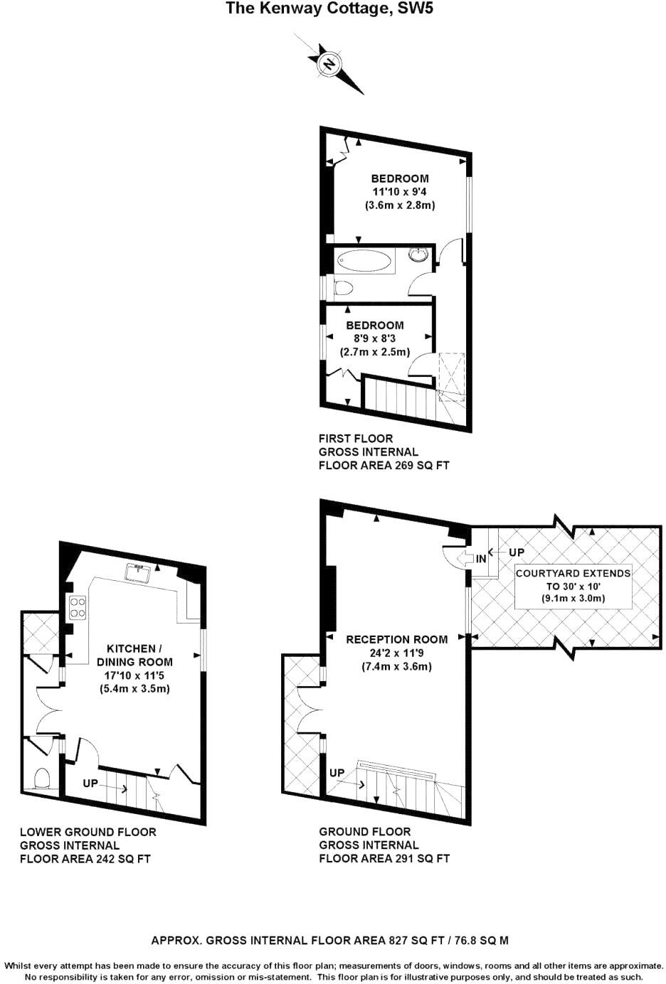
- Freehold two-bedroom house in Kenway Village, approximately 827 sq ft
- Large rustic eat-in kitchen and contemporary living room
- Potential roof terrace subject to planning permission
- Off-street residents parking and small front and rear outside spaces
- Built before 1900; solid brick walls, likely no insulation
- EPC rating E; energy and heating upgrades recommended
- Council tax band above average and very high local crime rate
- Central location near High Street Kensington and two Tube stations
Tucked away in Kenway Village, this two-bedroom house offers a rare freehold opportunity in central Kensington. Spread over three levels, the layout delivers generous lateral living, a large rustic eat-in kitchen and two double bedrooms — well suited to a first-time buyer seeking space and character. The property measures approximately 827 sq ft and benefits from off-street residents parking and a private front and rear outside area.
Positioned within easy walking distance of High Street Kensington, Holland Park and Earls Court and Gloucester Road stations, the house combines village seclusion with excellent transport and local amenities. There is also planning scope for a roof terrace subject to permissions, offering potential to add outdoor living and enhance value.
Buyers should note several practical points. The building dates from before 1900 and appears to have solid brick walls with no known insulation; energy performance is rated EPC E. The property sits on a very small plot and the council tax band is above average. Crime levels in the immediate area are reported as very high, which may affect insurance and security considerations.
Overall this is a characterful period home with immediate living space and clear potential to modernise and improve energy efficiency. It will suit purchasers who value central Kensington location, scope for refurbishment and the security of a freehold, while being mindful of upgrade and security needs.
2 bedroom terraced house for sale in Kenway Road, Earls Court, SW5 — £1,000,000 • 2 bed • 2 bath • 859 ft²
2 bedroom terraced house for sale in Kenway Road, Kenway Village, SW5 — £1,000,000 • 2 bed • 1 bath • 861 ft²
2 bedroom terraced house for sale in Kenway Road, Kenway Village, London, SW5 — £1,000,000 • 2 bed • 1 bath • 920 ft²
2 bedroom end of terrace house for sale in Redfield Lane, Earls Court, London, SW5 — £1,150,000 • 2 bed • 2 bath • 1179 ft²
1 bedroom apartment for sale in Redfield Lane, Earls Court, London, SW5 — £500,000 • 1 bed • 1 bath • 475 ft²
2 bedroom terraced house for sale in Uxbridge Street, Kensington, London, W8 — £1,950,000 • 2 bed • 2 bath • 1234 ft²


















































