Flexible family living with garage, workshop and strong scope for improvement.
Large enclosed gardens wrap around the property, riverside sliver included
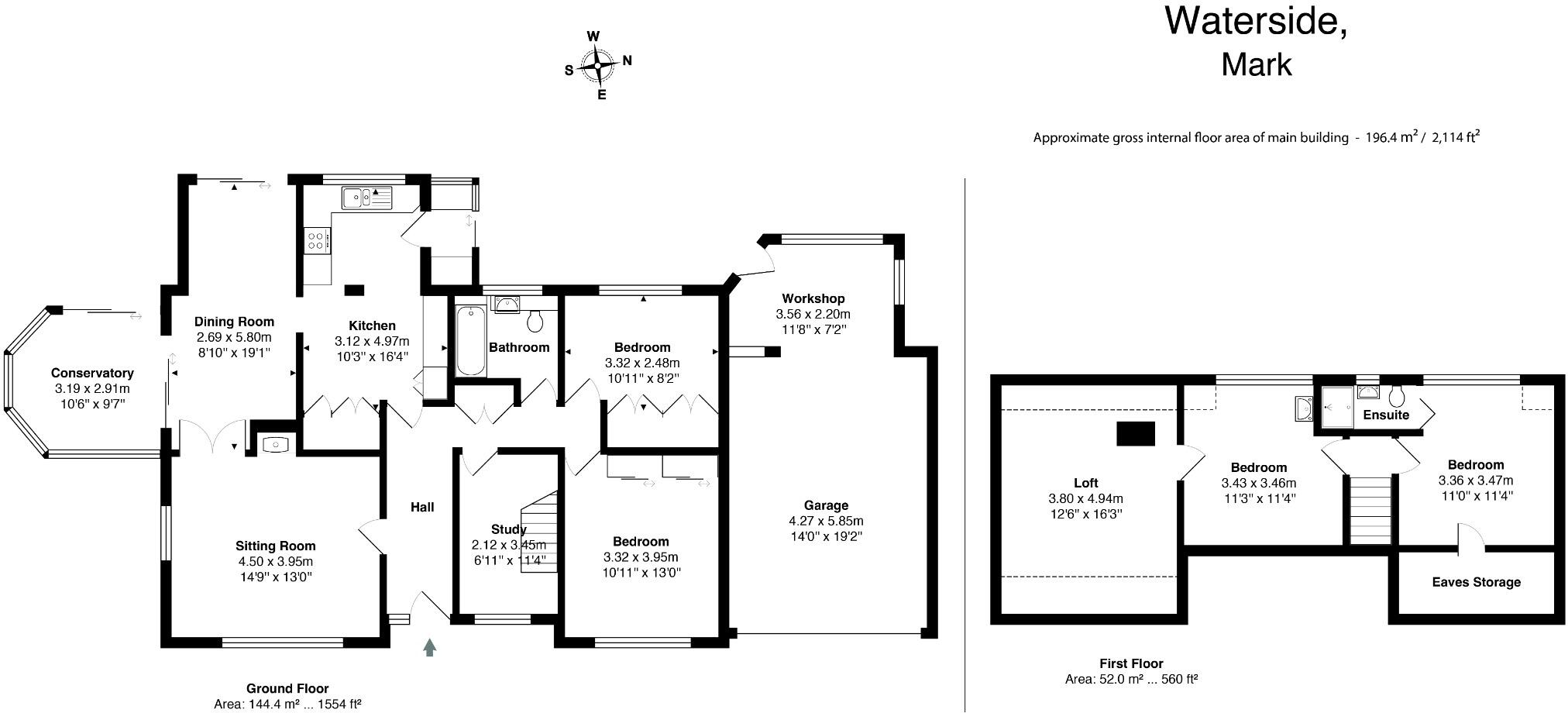
Set on a large, enclosed plot in the heart of Mark, this detached four-bedroom home offers flexible family living and generous outdoor space. The layout includes two ground-floor bedrooms and a family bathroom, with two further bedrooms upstairs (one with shower room), plus substantial eaves and an attic room with conversion potential. A conservatory and sunroom bring garden views into the home, while a sitting room with log burner adds year-round charm.
Practical benefits include off-road parking for at least two cars, a large garage with a workshop, utility room and good storage throughout. The gardens wrap around the property with mature hedging and a sliver of riverside garden, providing privacy and scope for landscaping or extension subject to permissions. The village location places shops, pubs, a primary school and community amenities within walking distance, while the M5, Burnham-on-Sea and Wedmore are easily reached.
There are a few important considerations to note. The property is oil‑fired central heating (private oil supply) and the EPC is E, so heating and efficiency improvements may be desirable. The house dates from the mid-20th century and, while well-proportioned, would benefit from some updating in places. There is a medium flood risk for the area and council tax sits in Band E. The sale is freehold and chain free, offering a straightforward purchase for the right buyer.
This home will suit buyers seeking a spacious village house with flexible accommodation, garden privacy and garage/workshop space, and who are happy to invest in energy improvements and selective refurbishment to unlock further potential.
4 bedroom detached bungalow for sale in Kingsway, Mark, Highbridge, TA9 — £550,000 • 4 bed • 2 bath • 1125 ft²
4 bedroom cottage for sale in The Causeway, Mark, TA9 — £350,000 • 4 bed • 2 bath • 1266 ft²
4 bedroom cottage for sale in The Causeway, Mark, TA9 — £350,000 • 4 bed • 2 bath • 1266 ft²
4 bedroom detached house for sale in Totney Wick House AND Building Plot (4000sqmts), TA9 — £1,525,000 • 4 bed • 2 bath • 4090 ft²
3 bedroom semi-detached house for sale in Church Street, Mark, Highbridge, TA9 — £400,000 • 3 bed • 2 bath • 1199 ft²
4 bedroom detached house for sale in Poplar Lane, Mark, Somerset, TA9 4QU, TA9 — £485,000 • 4 bed • 3 bath • 603 ft²


































































































