Extensive land with approved building plot and dramatic south‑facing views.
- Recently renovated character house with contemporary extension and high‑spec fittings
- Approximately 4.6 acres including fenced pasture, terrace and substantial garden
- Separate 2‑acre Kite House plot with full planning permission (380m2 dwelling)
- Under‑floor heating in extension; new compliant oil boiler and new oil tank
- Private drainage system recently replaced; mains electricity and water connected
- Very slow broadband; rural location with average mobile signal
- EPC rating E; external stone walls assumed without added insulation
- Garage for three cars, extensive parking and power nearby for outbuildings
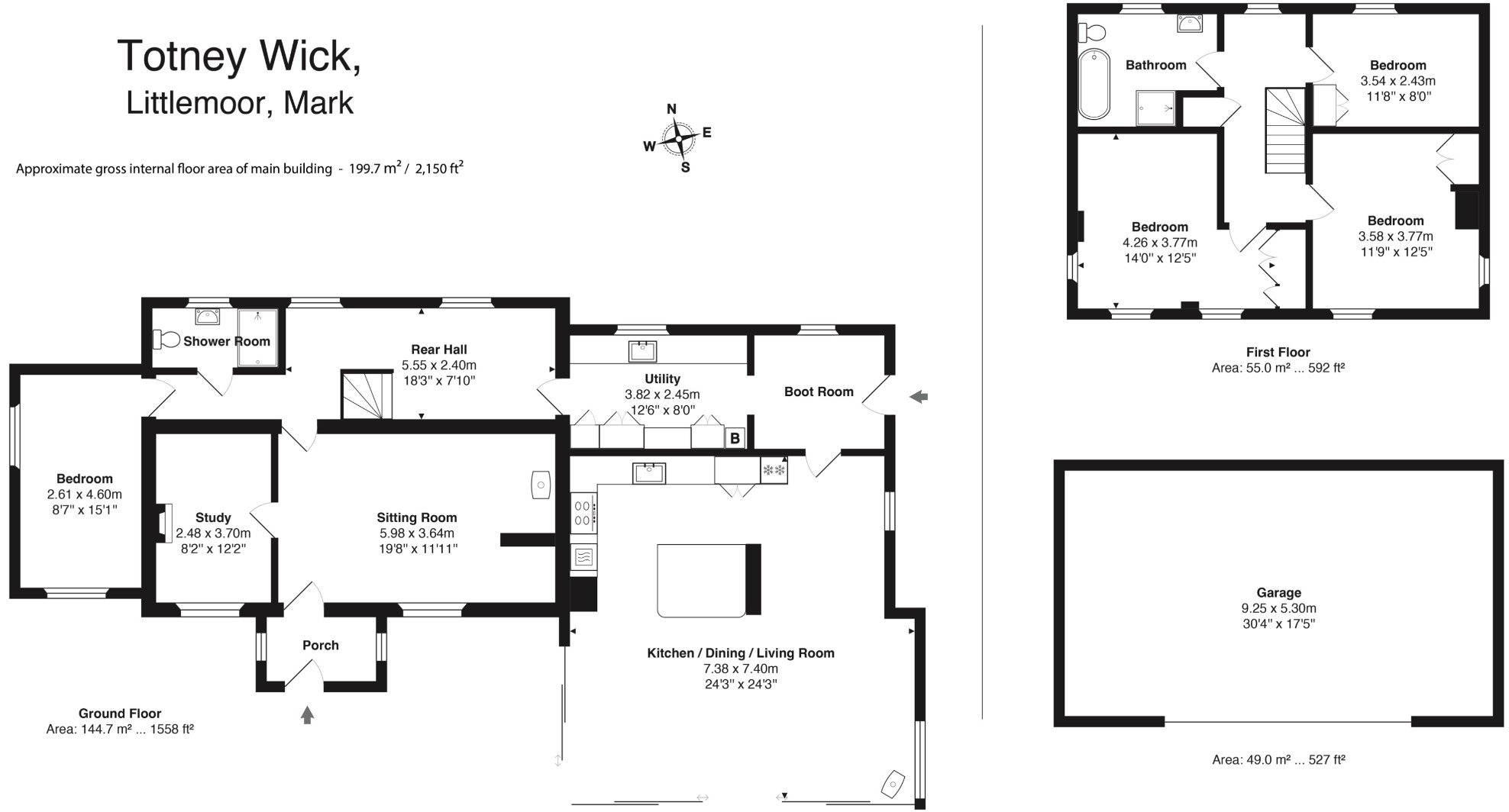
A rare countryside combination: a beautifully renovated four‑bedroom stone house set in about 4.6 acres, plus a separate 2‑acre plot with full planning permission for a 4,090ft2 contemporary dwelling and an American‑style barn. The main house blends historic charm and modern comforts — exposed inglenook fireplaces and cast‑iron features sit alongside a high‑spec kitchen, full‑height concertina glass doors, under‑floor heating and a new oil boiler and compliant drainage installed in 2024. The garage, extensive parking and fenced pasture offer immediate practical use for vehicles, hobbies or small livestock.
The separate Kite House plot is a genuine development opportunity with consent for a substantial new home and ancillary barn, benefitting from the same expansive, southerly views across open farmland — perfect for a multigenerational scheme or as an investment (can be marketed separately). Both parts enjoy peaceful rural privacy yet are within easy reach of local villages, good schools and market towns including Wedmore and Wells.
Practical considerations are straightforward but important: heating is oil‑fired (new compliant tank and boiler), the EPC is E, broadband speeds are described as very slow and external stone walls are assumed uninsulated. Private drainage is in place and there is no flood risk, but prospective buyers should confirm services, insulation options and long‑term running costs. This is a once‑in‑a‑generation package for buyers seeking space, views and development potential in a quiet Somerset setting.
5 bedroom detached house for sale in Kite House, Littlemoor, Mark, TA9 — £1,750,000 • 5 bed • 4 bath • 4090 ft²
Plot for sale in Land at Kite House, Littlemoor, TA9 — £500,000 • 1 bed • 1 bath • 4090 ft²
7 bedroom detached house for sale in Mudgley, Wedmore, BS28 — £1,500,000 • 7 bed • 3 bath • 4145 ft²
6 bedroom detached house for sale in Stoughton, Nr. Wedmore, BS28 — £1,700,000 • 6 bed • 4 bath • 5792 ft²
5 bedroom detached house for sale in Catsgore, Somerton, Somerset, TA11 — £980,000 • 5 bed • 3 bath • 4952 ft²
5 bedroom detached house for sale in Cocklake, Nr Wedmore, BS28 — £895,000 • 5 bed • 3 bath • 3590 ft²














































































































































