Spacious mid‑century farmhouse with large gardens and annexe, ideal for sympathetic renovation..
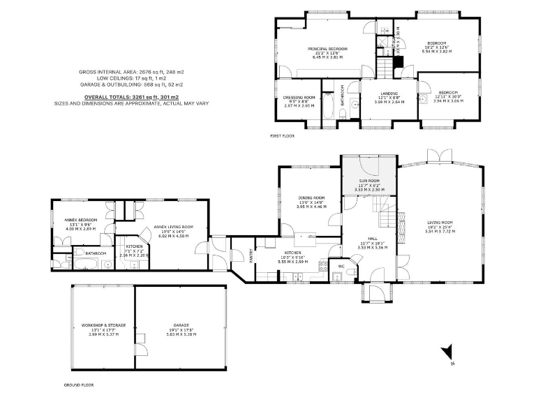
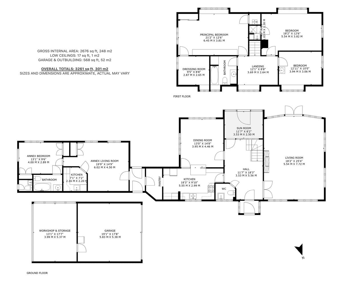
Large detached mid‑century house approx. 2,676 sq ft
Generous secluded garden, patio, outbuilding and double garage
Self‑contained annexe — agricultural tie applies
Needs renovation and modernisation throughout
Cavity walls likely uninsulated; energy improvements recommended
EPC rating D; Council Tax Band G (expensive)
Mains gas boiler heating; mains utilities connected
Very slow local broadband (predicted max 25/2 Mbps)
Heron Bank Farm House is a substantial mid‑century detached home set on generous, secluded grounds in an established farming area. Built in 1957, the property retains period character—rustic wooden floors, coving and a fireplace—while offering a large footprint (approx. 2,676 sq ft) and versatile living areas for family life and entertaining.
The plot includes an expansive lawn, patio, outbuilding and detached double garage, plus a self‑contained annexe that provides flexible accommodation for extended family, guests or workspace. Note the annexe is subject to an agricultural tie linked to the property, which restricts separate disposal or use outside the tie’s terms.
The house presents a clear modernisation opportunity: it needs renovation, the cavity walls appear uninsulated as built, and the EPC rating is D. Services are mains gas, electricity, water and drainage; heating is by mains‑gas boiler and radiators. Broadband speeds in the area are very slow (predicted max ~25 Mbps download, 2 Mbps upload), and Council Tax is in band G (quite expensive).
For buyers seeking a peaceful rural retreat with strong family appeal, Heron Bank offers a rare combination of size, privacy and countryside views. Those looking for a turnkey home should expect to budget for updating, insulation improvements and energy efficiency works. With sympathetic refurbishment, the house could become a comfortable long‑term family home or high‑quality country residence.
6 bedroom village house for sale in Hodgetts Lane, Berkswell, Coventry, West Midlands, CV7 — £1,650,000 • 6 bed • 3 bath • 3930 ft²
4 bedroom character property for sale in Ansley Common, Nuneaton, CV10 — £825,000 • 4 bed • 2 bath • 2500 ft²
9 bedroom detached house for sale in Compton Verney, Warwick, CV35 — £1,595,000 • 9 bed • 5 bath • 8926 ft²
4 bedroom house for sale in Halloughton Lane, Nether Whitacre - Approx 6 Acres, B46 — £1,000,000 • 4 bed • 2 bath • 3238 ft²
5 bedroom detached house for sale in Leather Mills Lane, Hartshill, CV10 — £735,000 • 5 bed • 4 bath • 3137 ft²
5 bedroom detached house for sale in Elland House, Hurley Common, CV9 — £850,000 • 5 bed • 2 bath • 3498 ft²














































































































































