LN2 2PD - 5 bedroom end of terrace house for sale in Church Street, N…

View on Property Piper

5 bedroom end of terrace house for sale in Church Street, Nettleham, LN2

Summary - 9, CHURCH STREET, LINCOLN, NETTLEHAM LN2 2PD

5 bed 3 bath End of Terrace

**Standout Features:**
- Charming four-bedroom home with period character
- Spacious living with three reception rooms and a conservatory
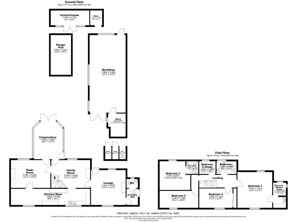
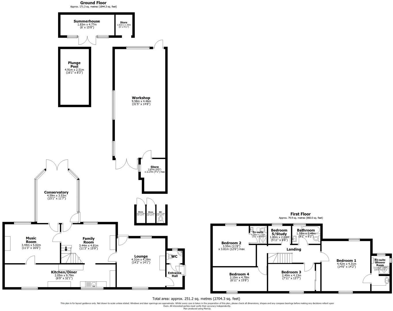
- Large rear garden with plunge pool, summer house, and workshop
- Central village location within walking distance to local amenities
- Potential for future development (subject to planning consent)

**Concise Summary:**
Discover ‘Haymans Ghyll’, a captivating four-bedroom end terrace home nestled in the heart of Nettleham, a thriving village. Boasting impressive period features such as exposed beams and multiple reception rooms, this residence offers both style and spaciousness, making it perfect for families. The dual-access conservatory opens to a generous rear garden, complete with a refreshing plunge pool, summer house, and workshop—ideal for outdoor leisure and family gatherings. The property benefits from two en-suite bathrooms and a family bathroom, providing ample facilities for a growing household.

While the home reflects traditional charm, it also offers modern comforts and conveniences with nearby local amenities including shops, schools, and public transport links. Outside, enjoy the expansive landscape that promises tranquility and versatility—a gardener’s paradise with room for play and relaxation. There’s also potential for further development, adding to the property’s appeal as a family haven or investment opportunity. Don’t miss your chance to secure this unique home in a sought-after community; it’s a rare find that invites your personal touch.

Property Details

Brochure Descriptions

Image Descriptions

Floorplan Description

Rooms

Textual Property Features

Detected Visual Features

EPC Details

Nearby Schools

Nearest Bars And Restaurants

,,,,}

Nearest General Shops

,,}

Nearest Grocery shops

,,}

Nearest Supermarkets

,,}

Nearest Religious buildings

,,}

Nearest Medical buildings

,,,}

Nearest Airports

}

Nearest Leisure Facilities

,,,,}

Nearest Tourist attractions

,,}

Nearest Train stations

,,,,}

Nearest Bus stations and stops

,,,,}

Nearest Hotels

,,}

Tags

AirBnB Data

Similar Properties

Meta

High Res Images

Compatible Images

Low res Images

Thumbnails

Raw Images

High Res Floorplan Images

Compatible Floorplan Images

Low res Floorplan Images

FloorplanImages Thumbnail

Raw Floorplan Images