SY16 4NB - 4 bed kerry country home in Kerry, SY16 4NB

View on Property Piper

4 bedroom semi-detached house for sale in Kerry, Newtown, Powys, SY16

Summary - Greenfields Hodley, Kerry SY16 4NB

4 bed 1 bath Semi-Detached

Four-bedroom fixer with huge garden, garage and strong renovation potential.
Four bedrooms across two storeys, traditional layout and character features
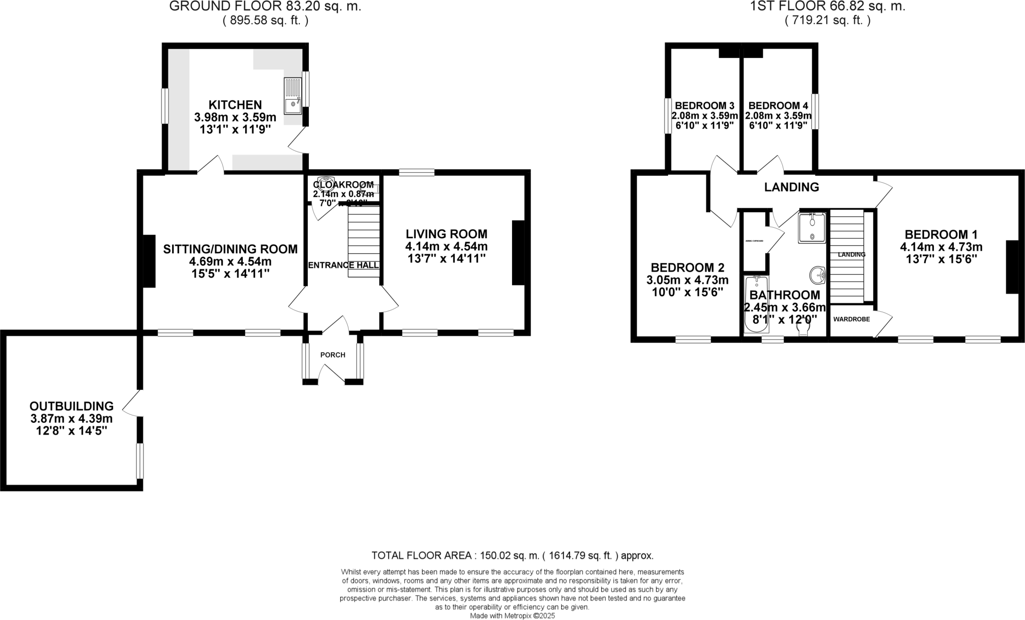
Set in the hamlet of Hodley just outside Kerry, this four-bedroom semi-detached house offers spacious rooms and a huge plot for gardens, outbuildings and potential extensions. The traditional brick property retains period character such as exposed beams and a fireplace, and benefits from a garage, mature planting and scenic rural views. Broadband and mobile signal are excellent despite the remoter location.

The house requires renovation throughout: the property has solid brick walls with no insulation, double glazing fitted before 2002, oil-fired boiler and radiators, and an overall energy rating that could be improved. Accommodation includes two principal reception rooms, kitchen, cloakroom, four bedrooms and a single family bathroom — useful space but limited wet-room provision for a four-bedroom house.

This home suits a family or buyer seeking countryside living with room to personalise. The very large plot and outbuildings provide strong scope for landscaping, hobby uses or modest rebuilding (subject to planning). Note the local area is classified as remoter agricultural communities with limited nearby services and higher local deprivation; practical access to shops and amenities will typically involve travel to Kerry or further.

Property Details

Brochure Descriptions

Image Descriptions

Floorplan Description

Rooms

Textual Property Features

Target Audience

AI Tags

Detected Visual Features

EPC Details

Nearest Bars And Restaurants

,,,,}

Nearest General Shops

,,}

Nearest Grocery shops

,,}

Nearest Supermarkets

,,}

Nearest Religious buildings

,,}

Nearest Medical buildings

,,,}

Nearest Leisure Facilities

,,,,}

Nearest Tourist attractions

,,}

Nearest Train stations

,,,,}

Nearest Bus stations and stops

,,,,}

Nearest Hotels

,,}

Tags

Local Market Stats

Similar Properties

Meta

High Res Images

Compatible Images

Low res Images

Thumbnails

Raw Images

High Res Floorplan Images

Compatible Floorplan Images

Low res Floorplan Images

FloorplanImages Thumbnail

Raw Floorplan Images