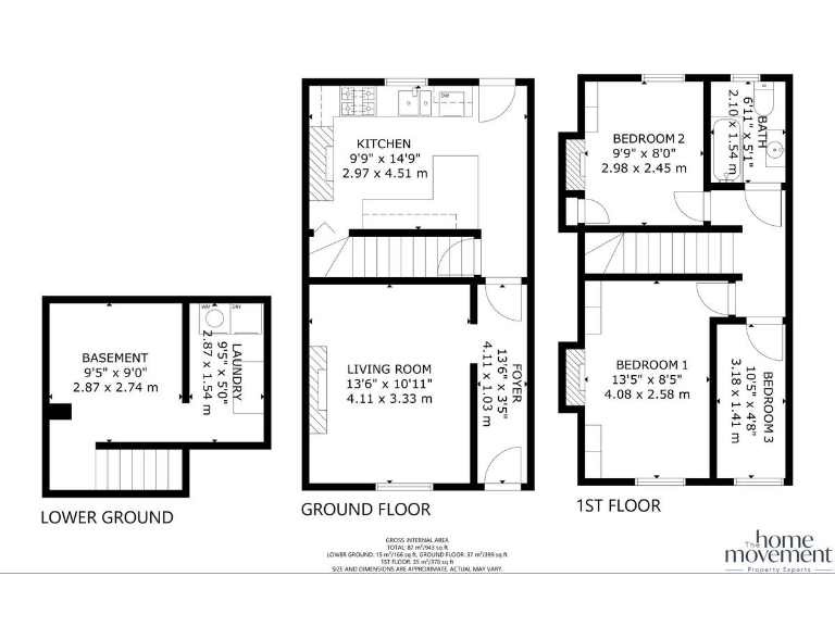
Characterful three-bed in central Otley with parking and attic potential.
- Period stone terrace with original fireplaces and high ceilings
- Recently fitted bathroom and shaker-style breakfast kitchen
- Off-street parking and low-maintenance rear garden with summerhouse
- Useful basement utility/storage space and boarded attic with conversion potential
- Small plot size; limited outdoor space
- External stone walls likely uninsulated (as-built) may need upgrading
- Single bathroom only; three bedrooms upstairs
- Local area affluent but crime rate is above average
A handsome Victorian stone terrace right in the heart of Otley, this three-bedroom freehold blends period character with practical modern upgrades. High ceilings, traditional fireplaces and original detailing sit alongside a shaker-style breakfast kitchen and a recently fitted bathroom, giving the house immediate comfort and charm. Off-street parking and a low-maintenance rear garden with a summerhouse add real lifestyle convenience for families or professionals.
The property also offers sensible scope to add value: a boarded attic with potential for conversion (subject to building regulations) and a useful basement/utility area that expands storage and practical space. Double glazing and gas central heating are already in place, making the house ready to live in while retaining opportunities to personalise.
Be realistic about the constraints: the plot is small, external stone walls are likely uninsulated, and the home has a single bathroom. The local area is affluent and family-focused but records above-average crime — an important local consideration. Overall this is a well-located, characterful home for buyers wanting central Otley living with scope to improve and add value.
3 bedroom terraced house for sale in Orchard Street, Otley, LS21 — £230,000 • 3 bed • 1 bath • 1052 ft²
3 bedroom terraced house for sale in Ilkley Road, Otley, LS21 — £260,000 • 3 bed • 1 bath • 886 ft²
3 bedroom terraced house for sale in South Parade, Otley, LS21 — £270,000 • 3 bed • 1 bath • 1076 ft²
2 bedroom terraced house for sale in Carlton Street, Otley, West Yorkshire, LS21 — £240,000 • 2 bed • 1 bath • 1033 ft²
2 bedroom terraced house for sale in Carlton Street, Otley, LS21 — £250,000 • 2 bed • 1 bath • 948 ft²
3 bedroom terraced house for sale in Albion Street, Otley, LS21 — £275,000 • 3 bed • 2 bath • 1147 ft²


















































































