Character three-bed terrace near Otley centre — modern bathroom, stunning master.
Three-bedroom Victorian cottage with abundant exposed stone and beams
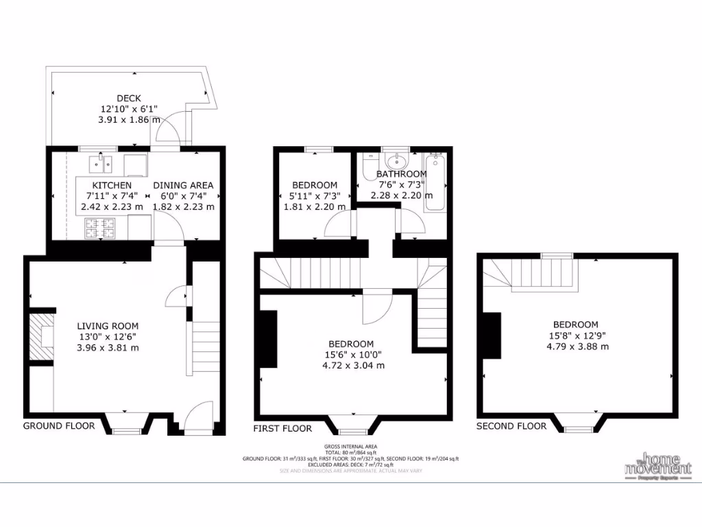
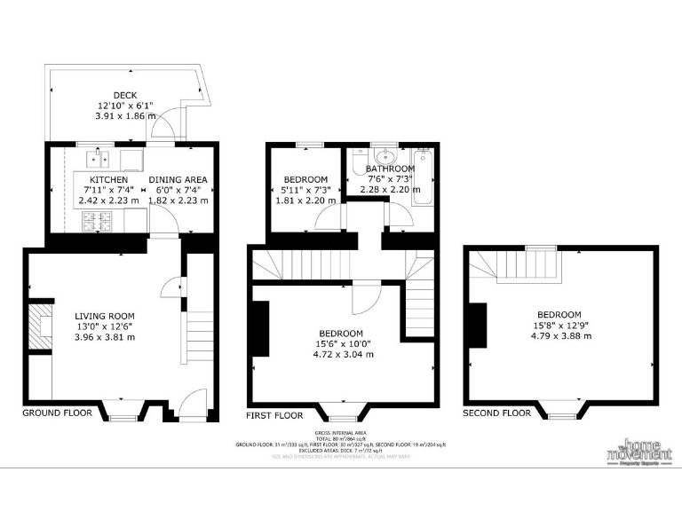
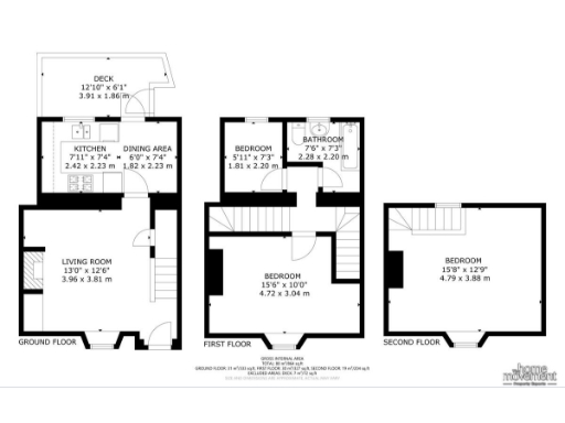
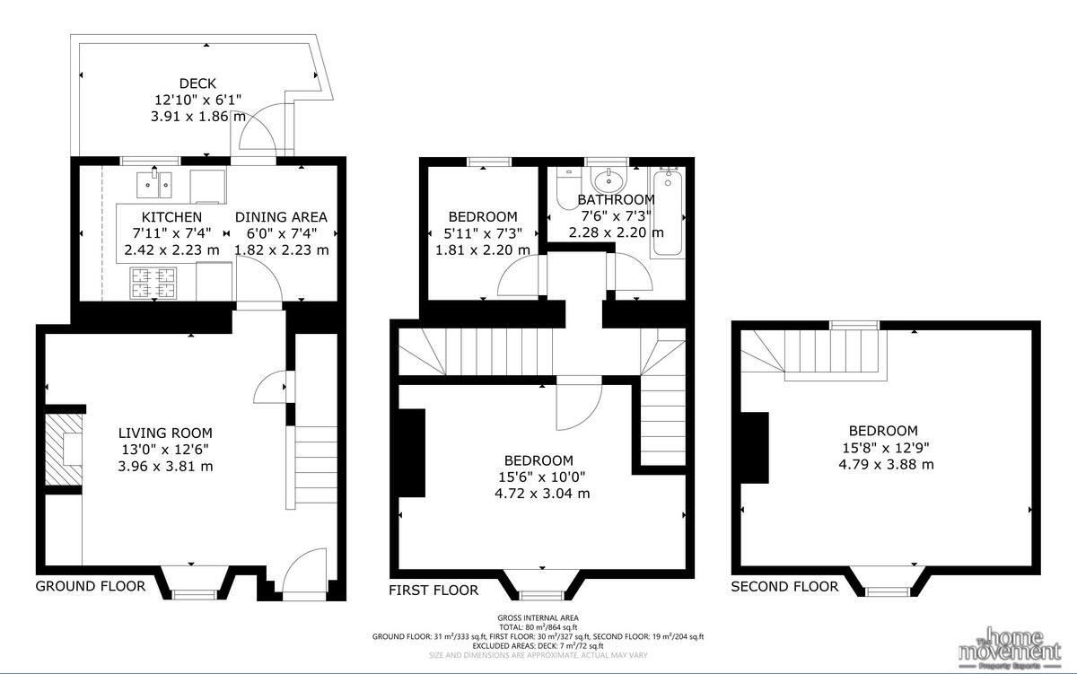
This former weavers’ cottage combines original Victorian character with modern comforts, arranged over three floors close to central Otley. Exposed stonework, ceiling beams and a wood-burning stove give the living spaces real charm, while a recently fitted kitchen and bathroom make the house ready for everyday family life. The second-floor master bedroom is a particular highlight — bright, roomy and packed with character.
The property works well for a family or couple seeking village-town convenience: schools, shops, pubs and riverside walks are all within easy reach. The small decked terrace provides a neat outdoor space for summer relaxing or barbecues, and there is practical understairs and alcove storage. Mains gas central heating and double glazing (post-2002) help keep running costs sensible; Council Tax Band B is modest.
Buyers should note this is an older stone house (c.1860) on a very small plot. External walls are likely uninsulated as originally constructed, and some rooms are compact with low-to-standard ceiling heights — the living room in particular would benefit from modernization in places. There is a medium flooding risk for the area. The property currently has one bathroom and limited outside space, which may be important for larger families or those wanting a garden.
Overall this is a characterful, centrally located terraced home that suits buyers seeking period detail with modern essentials already in place. It offers immediate move-in potential while also presenting scope for targeted improvements to increase comfort and energy performance over time.
 3 bedroom terraced house for sale in Guycroft, Otley, LS21 — £250,000 • 3 bed • 1 bath • 1066 ft²
 3 bedroom terraced house for sale in Guycroft, Otley, LS21 — £250,000 • 3 bed • 1 bath • 1066 ft² 3 bedroom terraced house for sale in Orchard Street, Otley, LS21 — £230,000 • 3 bed • 1 bath • 1052 ft²
 3 bedroom terraced house for sale in Orchard Street, Otley, LS21 — £230,000 • 3 bed • 1 bath • 1052 ft² 2 bedroom terraced house for sale in Ilkley Road, Otley, LS21 — £260,000 • 2 bed • 1 bath • 897 ft²
 2 bedroom terraced house for sale in Ilkley Road, Otley, LS21 — £260,000 • 2 bed • 1 bath • 897 ft² 2 bedroom terraced house for sale in Waites Terrace, Otley, West Yorkshire, LS21 — £205,000 • 2 bed • 1 bath • 721 ft²
 2 bedroom terraced house for sale in Waites Terrace, Otley, West Yorkshire, LS21 — £205,000 • 2 bed • 1 bath • 721 ft² 2 bedroom terraced house for sale in Ilkley Road, Otley, West Yorkshire, LS21 — £205,000 • 2 bed • 1 bath • 678 ft²
 2 bedroom terraced house for sale in Ilkley Road, Otley, West Yorkshire, LS21 — £205,000 • 2 bed • 1 bath • 678 ft² 3 bedroom terraced house for sale in Albion Street, Otley, LS21 — £275,000 • 3 bed • 2 bath • 1147 ft²
 3 bedroom terraced house for sale in Albion Street, Otley, LS21 — £275,000 • 3 bed • 2 bath • 1147 ft²


















































































