Charming village home with garden and off-street parking for family life.
Three bedrooms including principal with ensuite shower room
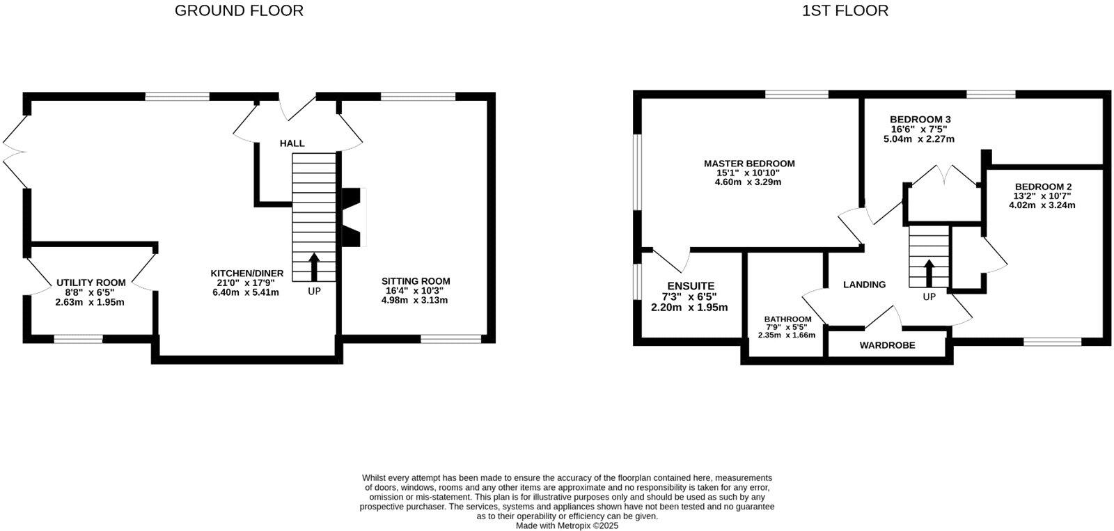
Set in the peaceful village of Egerton, this three-bedroom semi-detached home combines cottage character with practical modern updates. The house offers a bright kitchen/diner, a spacious sitting room and a useful utility room, all arranged over an average-sized 1,113 sq ft layout that suits families or professionals seeking village life with convenient access to Ashford.
Upstairs there are three well-proportioned bedrooms, including a principal bedroom with ensuite, plus a family bathroom. The double-glazed windows and mains gas boiler with radiators provide everyday comfort; glazing install date is not confirmed. Externally the private rear garden and off-street driveway are welcome assets, and there appears to be potential to formalise garage space subject to checks.
The property was constructed in the mid-20th century and presents as well maintained, though buyers should commission their own structural, services and damp inspections as particulars are a guide only. Broadband and mobile signals are average in the area. Council tax band is not provided and should be confirmed before offer.
A note on purchase process: the sale information mentions an optional exclusivity arrangement requiring a refundable £2,000 fee and a separate £200 processing fee to secure an exclusive purchase period. Prospective buyers should assess these terms and seek legal advice before committing.
3 bedroom bungalow for sale in Stisted Way, Egerton, TN27 — £575,000 • 3 bed • 1 bath • 1630 ft²
2 bedroom terraced house for sale in Egerton, TN27 — £375,000 • 2 bed • 1 bath • 893 ft²
6 bedroom detached house for sale in Mundy Bois Road, Egerton, Kent, TN27 9EU, TN27 — £1,695,000 • 6 bed • 3 bath • 3604 ft²
3 bedroom detached bungalow for sale in Stisted Way, Egerton, Ashford TN27 — £395,000 • 3 bed • 1 bath • 904 ft²
3 bedroom link detached house for sale in Egerton Forstal, Egerton, Ashford, Kent, TN27 — £325,000 • 3 bed • 1 bath • 851 ft²
4 bedroom detached house for sale in Coldbridge Lane, Egerton, Ashford, TN27 — £975,000 • 4 bed • 4 bath • 3584 ft²


































































































































