**Standout Features:**
- Grade B Listed building with historical charm
- Recently granted planning permission for residential conversion (2-bed flat & 3 studio apartments)
- Prime location in Elgin, adjacent to notable landmarks
- Expansive open-plan office space; high ceilings and large windows
- Secure bike storage promoting sustainable transport
- Excellent mobile signal and fast broadband
**Potential Concerns:**
- Requires renovation to meet modern standards
- Listed status may complicate future renovations or extensions
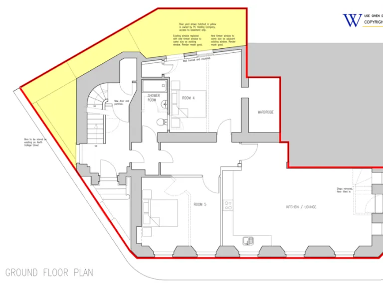
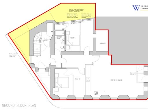
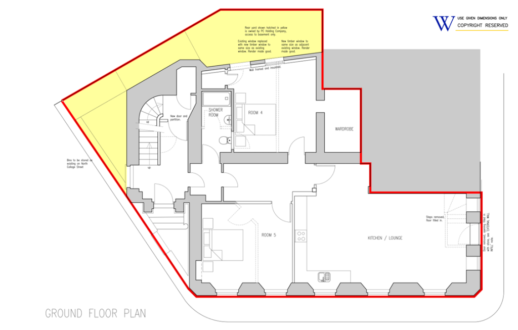
Little Cross House, located at the end of Elgin's High Street, offers a unique investment opportunity combining historical integrity with modern potential. This spacious Grade B Listed property, with over 2,889 sq ft, has been granted planning permission for conversion into one two-bedroom apartment and three studio apartments, ideal for short-term rental solutions to accommodate NHS staff. The ground floor features an expansive office space and can have substantial residential appeal, while the picturesque stone staircase leads to bright upper floors filled with natural light, thanks to numerous floor-to-ceiling windows.
Situated near a variety of local amenities and a short walk from the train station, this property blends convenience with charm. The presence of secure bike storage plus the potential to add more living space on the second floor (subject to approval) enhances its allure. While the building does require renovation, its prime location and historical significance make it a distinctive opportunity not likely to stay on the market for long. Don't miss out on the chance to transform Little Cross House into a modern community asset that preserves its captivating heritage.
Office for sale in 74-76 South Street, Elgin, IV30 1JG, IV30 — £670,000 • 1 bed • 1 bath • 9771 ft²
Studio apartment for sale in Elgin, IV30 — £85,000 • 1 bed • 1 bath • 378 ft²
High street retail property for sale in The Picture Framer, 27 North Street, Bishopmill, Elgin, IV30 4EE, IV30 — £110,000 • 1 bed • 1 bath • 904 ft²
Studio apartment for sale in Elgin, IV30 — £105,000 • 1 bed • 1 bath • 424 ft²
Residential development for sale in South Street, Elgin, Morayshire, IV30 — £295,000 • 1 bed • 1 bath
Office for sale in Prospect Lodge 7 Mayne Road, Elgin, IV30 — £350,000 • 1 bed • 1 bath • 3019 ft²


















































































