IV30 1JG - Office for sale in 7476 South Street, Elgin, IV30 1JG, IV30

View on Property Piper

Office for sale in 74-76 South Street, Elgin, IV30 1JG, IV30

Summary - 74-76, SOUTH STREET IV30 1JG

1 bed 1 bath Office

**Standout Features:**
- Substantial detached office building with a modern extension
- Prime central location in Elgin Town Centre
- Open-plan layout across two floors, offering significant versatility
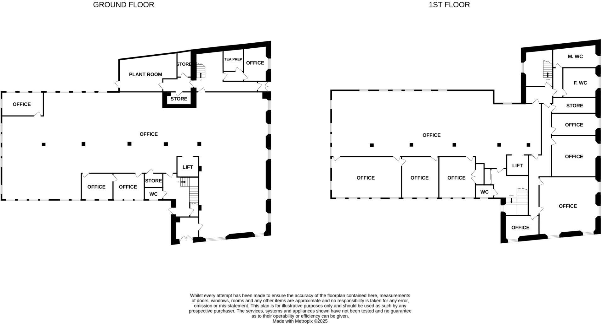
- Total area of 9,771 sq ft (GIA 907.8 sq m)
- On-site parking availability
- Excellent mobile signal and fast broadband speeds

**Summary:**
Presenting a unique opportunity at 74-76 South Street, Elgin, this expansive two-story office building boasts a mix of traditional charm and modern functionality. The property features a robust stone facade complemented by a large modern extension, with predominantly open-plan interiors spanning a generous 9,771 sq ft. Its central town location ensures convenient access to a variety of amenities, perfect for businesses looking to thrive in a bustling environment or investors seeking a renovation project with strong redevelopment potential.

Although currently an office space, buyers may envision transforming this substantial property into diverse commercial or residential ventures—subject to the relevant consents. While the area shows notable signs of deprivation, the significant square footage and prime location provide an ideal foundation for creative renovations or conversions. Explore the possibilities this property offers, whether it's establishing a new business or developing a unique urban living space in Elgin. Don't miss out on this exceptional opportunity in a competitive market—properties with such potential and location are rare!

Property Details

Brochure Descriptions

Image Descriptions

Floorplan Description

Rooms

Textual Property Features

Detected Visual Features

Nearest Bars And Restaurants

,,,,}

Nearest General Shops

,,}

Nearest Grocery shops

,,}

Nearest Supermarkets

,,}

Nearest Religious buildings

,,}

Nearest Medical buildings

,,,}

Nearest Leisure Facilities

,,,,}

Nearest Tourist attractions

,,}

Nearest Train stations

,,}

Nearest Bus stations and stops

,,,,}

Nearest Hotels

,,}

Tags

Local Market Stats

AirBnB Data

Similar Properties

Meta

High Res Images

Compatible Images

Low res Images

Thumbnails

Raw Images

High Res Floorplan Images

Compatible Floorplan Images

Low res Floorplan Images

FloorplanImages Thumbnail

Raw Floorplan Images