Let property offering immediate income and clear scope for value-adding refurbishment.
Let at £450 pcm, producing approx 7.7% gross yield based on guide price
Freehold mid-terrace with enclosed rear yard and period red-brick frontage
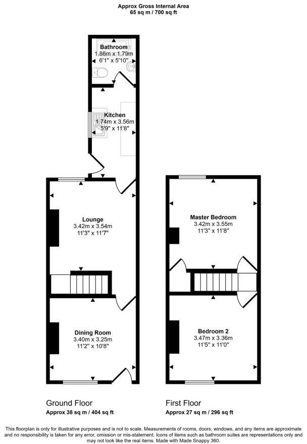
Approximately 700 sq ft; average-sized rooms and standard ceiling heights
Kitchen and decoration dated—modernisation required to increase value
Sold at auction on 10 Dec 2025; unconditional sale with strict timelines
Buyer fees apply: 10% deposit (min £5,000) plus £1,200 + VAT administration fee
Auctioneer not internally inspected—recommend legal pack review and inspection
Area very deprived; council tax very low, broadband fast, mobile signal excellent
Offered at online auction on 10 December 2025, this two-bedroom mid-terrace presents a straightforward income play. Currently let at £450 pcm (£5,400 pa), the guide price produces an approximate 7.7% gross yield for buyers seeking immediate rental return. The property is freehold and compact at around 700 sq ft, with an enclosed rear yard and traditional red-brick façade that retains period character.
Internally the layout comprises lounge, kitchen, dining room and bathroom to the ground floor, with two bedrooms above. The kitchen and general decoration are dated and will need modernisation to improve rent or resale value. The auction particulars note the property has not been internally inspected by the auctioneer — buyers should review the legal pack and arrange inspections where possible before bidding.
Practical advantages include low council tax, fast broadband and excellent mobile signal, plus a location close to shops, local amenities and several schools rated Good. Important transactional considerations: the lot is unconditional, requires a 10% deposit (minimum £5,000) on fall of the hammer, and a Buyer’s Administration Fee of £1,200 + VAT; contracts exchange immediately with completion typically 28 days after auction. Additional fees and legal costs may apply as set out in the legal pack.
This property suits investors or cash buyers comfortable with auction purchases and light-to-moderate refurbishment. It offers immediate rental income with clear upside from kitchen and cosmetic upgrades, but buyers should factor in renovation costs and the local area’s high deprivation when assessing long-term rent growth or resale prospects.
2 bedroom end of terrace house for sale in Fell Street, Stoke-On-Trent, ST6 1JT, ST6 — £86,000 • 2 bed • 1 bath • 786 ft²
2 bedroom terraced house for sale in 54 Lowther Street, Stoke-on-Trent, Staffordshire, ST1 5JF, ST1 — £20,000 • 2 bed • 1 bath
2 bedroom terraced house for sale in 5 Lindley Street, Stoke-On-Trent, Staffordshire ST6 2DW, ST6 — £16,000 • 2 bed • 1 bath • 764 ft²
2 bedroom terraced house for sale in 11 Lindley Street, Stoke-on-Trent, Staffordshire, ST6 2DW, ST6 — £20,000 • 2 bed • 1 bath • 778 ft²
2 bedroom terraced house for sale in Davis Street, Stoke-On-Trent ST4 7AD, ST4 — £25,000 • 2 bed • 1 bath
2 bedroom terraced house for sale in Adkins Street, Stoke-on-Trent, ST6 — £25,000 • 2 bed • 1 bath • 736 ft²






































