Low-price auction lot with clear scope for value-add refurbishment.
Guide price £20,000 — low entry at auction
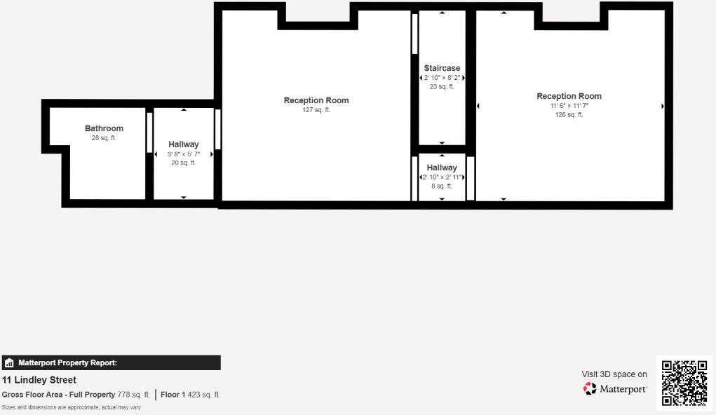
A vacant freehold mid-terrace Victorian property offered at auction with clear short-term upside for a cash purchaser. The house has two bedrooms, one bathroom and an average overall size across approximately 778 sq ft, sitting on a decent plot with a rear yard. Broadband and mobile signal are strong locally, and the property benefits from mains gas central heating and double glazing (installation date unknown).
The property requires full refurbishment: the kitchen is without fittings, internal rooms are small, and the walls are solid brick with no known insulation (likely to need thermal upgrades). The EPC is D. Buyers should expect repair and modernisation costs to create lettable accommodation or a comfortable home.
This lot is being sold at public auction with vacant possession and a 42-day completion period. There is an administration fee payable on completion (stated at £2,340 inc VAT) and buyers must study the legal pack for any additional costs or special conditions. The sale environment suits experienced auction purchasers and investors prepared to act quickly.
Location strengths include city-centre accessibility and nearby amenities such as shops, leisure and schools. The local area is an urban cultural mix with a significant Pakistani community; note the ward is very deprived and recorded high crime levels, which will affect rental profile and resale prospects. For the right buyer this is a low-entry-price renovation project or buy-to-let opportunity with potential to add value through modernisation and insulation improvements.
2 bedroom terraced house for sale in 54 Lowther Street, Stoke-on-Trent, Staffordshire, ST1 5JF, ST1 — £20,000 • 2 bed • 1 bath
2 bedroom terraced house for sale in 32 Avoca Street, Stoke-on-Trent, Staffordshire, ST1 2NT, ST1 — £20,000 • 2 bed • 1 bath • 1032 ft²
2 bedroom end of terrace house for sale in Fell Street, Stoke-On-Trent, ST6 1JT, ST6 — £86,000 • 2 bed • 1 bath • 786 ft²
2 bedroom terraced house for sale in Adkins Street, Stoke-on-Trent, ST6 — £25,000 • 2 bed • 1 bath • 736 ft²
2 bedroom terraced house for sale in Adkins Street, Cobridge, Stoke-on-Trent, ST6 — £55,000 • 2 bed • 1 bath • 588 ft²
2 bedroom terraced house for sale in Davis Street, Stoke-On-Trent ST4 7AD, ST4 — £25,000 • 2 bed • 1 bath


























































