Spacious four-bed detached on a secluded, landscaped plot beside Blaise Castle Estate.
Chain-free large detached house on approx one-third acre plot
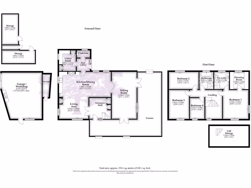
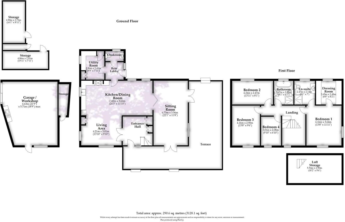
Set within the historic Blaise Castle Estate, this architect-designed detached house occupies an exceptional, tree-lined plot of roughly one-third of an acre. The home delivers generous living space (about 2,185 sqft) across two stories, with a 24ft open-plan living/dining/kitchen, a grand galleried landing and a full-depth master suite with dressing room and luxury ensuite. High-spec fixtures include a quartzite island, triple glazing, MVHR, water softener and underfloor heating throughout — practical comforts for year-round family living.
Outside is a private, level garden with a wrap-around slate terrace, greenhouse, two bespoke sheds and a large detached garage/workshop with scope for conversion to an annexe or home office. The gated approach, motion-sensor lighting and mature tree screening create a secluded, semi-rural feel while remaining in North Bristol, close to highly regarded schools and the recreational spaces of Blaise Castle Estate.
This property will suit families seeking a spacious, contemporary home with high-end specification and versatile outbuildings. It’s offered chain-free for a quicker sale. Note practical constraints: the plot is in a Conservation Area (tree works require council consent), previously granted solar-panel and flue planning has lapsed, broadband speeds are reported slow, and the site is in a medium flood-risk zone. There is also a higher local crime rate to consider.
Overall, this is a rare, high-spec detached home in a private, prestigious setting with clear potential for adaptation (garage annexe, home working) but with some environmental and local-service caveats to weigh before purchase.
3 bedroom link detached house for sale in Henbury Road, Henbury, Bristol, BS10 — £500,000 • 3 bed • 1 bath • 1130 ft²
4 bedroom detached house for sale in Benville Avenue, Bristol, BS9 — £650,000 • 4 bed • 1 bath • 1525 ft²
5 bedroom detached house for sale in Fishpool Hill, Brentry, Bristol, BS10 — £850,000 • 5 bed • 2 bath • 2993 ft²
4 bedroom detached house for sale in Gleneagles Drive, Bristol, BS10 — £475,000 • 4 bed • 1 bath • 1497 ft²
4 bedroom detached house for sale in Shirehampton Road, Bristol, BS9 — £850,000 • 4 bed • 3 bath • 2092 ft²
4 bedroom detached house for sale in Trymwood Close, Henbury, Bristol, BS10 — £485,000 • 4 bed • 1 bath • 1238 ft²






































































































