**Standout Features:**
- Modern 2-bedroom flat with a private entrance
- Open-plan kitchen and living area with quality appliances
- Allocated off-street parking and visitor bays
- Shared courtyard and bicycle storage
- Freehold tenure and no onward chain
- Low crime rates in a comfortable neighborhood
- Access to nearby schools with outstanding and good Ofsted ratings
**Summary:**
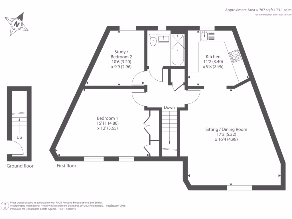
This contemporary two-bedroom flat in Woodstock offers the ideal blend of comfort and convenience, perfect for first-time buyers or small families. Priced at £335,000, this light-filled first-floor apartment features a spacious double bedroom and a versatile second room suitable as a guest room or home office. The open-plan kitchen and dining-sitting areas are enhanced by quality, nearly-new appliances, providing a stylish space for both entertaining and everyday living.
Enjoy the added benefits of a private entrance, off-street parking, and a relaxing shared courtyard—all while being steps away from a picturesque nature corridor for outdoor walks. With all essential amenities just a short distance away and excellent local schools, this flat is not only a comfortable home but also a smart investment in a highly desirable area. Don't miss out on this fantastic opportunity with no onward chain—schedule a visit today and envision your future in this charming property!
2 bedroom flat for sale in Boundary Close, Woodstock, Oxfordshire, OX20 — £240,000 • 2 bed • 1 bath • 607 ft²
2 bedroom semi-detached house for sale in Randolph Avenue, Woodstock, OX20 — £255,000 • 2 bed • 1 bath • 816 ft²
2 bedroom apartment for sale in High Street, Woodstock, OX20 — £350,000 • 2 bed • 1 bath • 598 ft²
2 bedroom apartment for sale in Woodstock Road, Oxford, Oxfordshire, OX2 — £515,000 • 2 bed • 2 bath • 803 ft²
3 bedroom apartment for sale in Randolph Avenue, Woodstock, Oxfordshire, OX20 — £350,000 • 3 bed • 2 bath • 882 ft²
2 bedroom house for sale in New Road, Woodstock, OX20 — £350,000 • 2 bed • 1 bath • 747 ft²


















































































