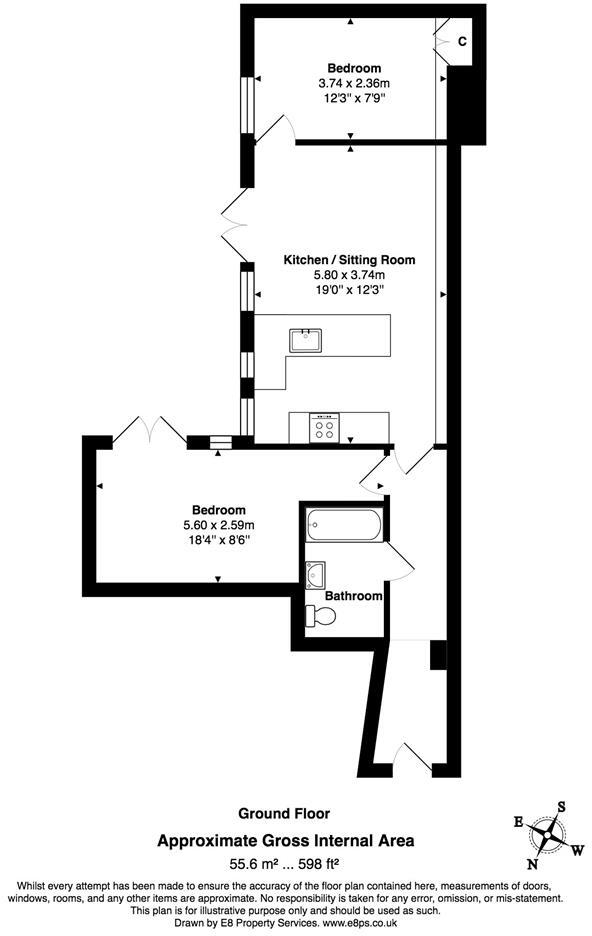
**Standout Features:**
- Two-bedroom, ground floor apartment
- Recently refurbished with modern finishes
- Open-plan kitchen and living area
- Private, low-maintenance courtyard garden
- Central Woodstock location with easy access to amenities
- Eligible for permit parking
- 103 years remaining on the lease
**Summary:**
Discover this beautifully redesigned two-bedroom ground floor apartment, perfectly located in the heart of Woodstock. The residence impresses with its free-flowing, light-filled layout, featuring a chic open-plan kitchen that seamlessly blends with the living area—ideal for modern living and entertaining. The living space extends effortlessly into a private, low-maintenance courtyard garden, perfect for al fresco dining or quiet retreats. Both well-proportioned bedrooms and the strikingly modern bathroom showcase exceptional attention to detail, making this property both stylish and functional.
The thriving market town offers a charming mix of local shops, cafes, restaurants, and easy access to outdoor spaces such as Blenheim Palace Estate. Families will appreciate the proximity to highly-rated schools, childcare facilities, and excellent transport links to Oxford and beyond. While the property boasts an average square footage, the thoughtfully optimized space and trendy renovations provide a cozy yet sophisticated living environment. Don’t miss out on this unique opportunity—schedule your viewing today and imagine the potential of calling this extraordinary apartment your home.
2 bedroom house for sale in New Road, Woodstock, OX20 — £350,000 • 2 bed • 1 bath • 747 ft²
2 bedroom apartment for sale in Lewisfield Way, Woodstock, OX20 — £150,000 • 2 bed • 1 bath • 605 ft²
3 bedroom apartment for sale in Randolph Avenue, Woodstock, Oxfordshire, OX20 — £350,000 • 3 bed • 2 bath • 882 ft²
2 bedroom terraced house for sale in Oxford Street, Woodstock, OX20 — £698,000 • 2 bed • 1 bath • 1251 ft²
2 bedroom apartment for sale in Market Place, Woodstock, OX20 — £440,000 • 2 bed • 1 bath • 776 ft²
1 bedroom apartment for sale in Boundary Close, Woodstock, OX20 — £230,000 • 1 bed • 1 bath • 520 ft²














































