N4 2AY - 1 bed renovated garden flat in Hackney North And Stoke Newi…

View on Property Piper

1 bedroom flat for sale in Adolphus Road, London, N4

Summary - Adolphus Road, N4 N4 2AY

1 bed 1 bath Flat

Move-in-ready one-bed with private patio garden and superb transport links.
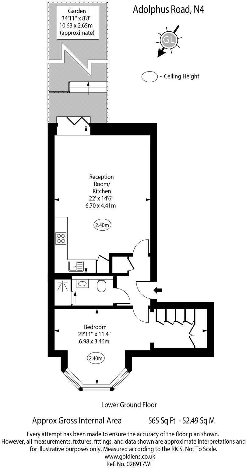
- Newly renovated one-bedroom flat, approx. 550 sq ft
- Private southeast-facing landscaped garden, direct patio access
- Open-plan living with Siemens appliances and oak flooring
- Share of freehold, 992 years remaining, chain free
- Service charge about £2,100 per year
- Excellent transport: walking distance to Finsbury Park station
- Local crime levels above average; area shows some deprivation
- Broadband speeds average despite excellent mobile signal
This newly renovated one-bedroom flat on Adolphus Road offers a ready-to-move-into London home with private outdoor space. The open-plan living and kitchen area features engineered oak flooring, recessed lighting and Siemens appliances, with large doors that lead directly to a southeast-facing landscaped garden. The master bedroom includes built-in storage and bespoke shutters; the bathroom has underfloor heating for added comfort.

Practical ownership is straightforward: the property is chain free, offered as a share of freehold and benefits from an exceptionally long lease (992 years). At around 550 sq ft, the layout is well proportioned for a first-time buyer or couple seeking a low-maintenance central London base, with excellent transport links via nearby Finsbury Park station and quick access to green spaces such as Finsbury Park and Clissold Park.

Buyers should note a few material points: the service charge is approximately £2,100 per year, broadband speeds are average, and local crime levels are above average. The immediate area is socially mixed and classed as deprived in parts, which may influence resale or rental considerations despite the strong commuter location.

Overall, this flat combines period exterior charm with contemporary, high-spec interiors and rare private garden access — a practical, comfortable choice for someone prioritising move-in readiness and transport connections in north London.

Property Details

Brochure Descriptions

Image Descriptions

Floorplan Description

Rooms

Textual Property Features

Target Audience

AI Tags

Detected Visual Features

Nearby Schools

Nearest Bars And Restaurants

,,,,}

Nearest General Shops

,,}

Nearest Grocery shops

,,}

Nearest Supermarkets

,,}

Nearest Religious buildings

,,}

Nearest Medical buildings

,,,}

Nearest Airports

,}

Nearest Leisure Facilities

,,,,}

Nearest Tourist attractions

,,}

Nearest Train stations

,,,,}

Nearest Bus stations and stops

,,,,}

Nearest Hotels

,,}

Tags

Local Market Stats

AirBnB Data

Similar Properties

Meta

High Res Images

Compatible Images

Low res Images

Thumbnails

Raw Images

High Res Floorplan Images

Compatible Floorplan Images

Low res Floorplan Images

FloorplanImages Thumbnail

Raw Floorplan Images