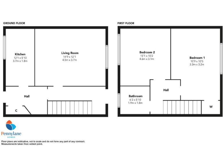
Two-bedroom renovation opportunity with private gardens and excellent views.
Two double bedrooms with convenient storage cupboard in master
Bright front lounge with large window, good natural light
Private front and rear gardens, potential for outdoor use
Gas central heating and double glazing already installed
Rear bedroom enjoys uninterrupted views over Ben Lomond
Requires modernisation—kitchen and decor need updating
Located in an area with socio-economic challenges—affects comparables
On-street parking only; no off-street driveway
This mid-20th-century mid-terraced villa offers straightforward space and clear renovation potential for a first-time buyer or investor. The house has two double bedrooms, bright front lounge, and private front and rear gardens — all within a manageable 786 sq ft footprint. Gas central heating and double glazing are already in place, and the rear bedroom benefits from uninterrupted views toward Ben Lomond.
The layout lends itself to improvement: the rear hallway could be incorporated into the kitchen to create a generous dining-kitchen, and room sizes throughout are comfortable for modernisation rather than full-scale extension. On-street parking and nearby play and leisure facilities support family life, while the property is freehold with an affordable council tax band.
Be clear about the work required: the home needs modernisation and some dated fixtures remain; cosmetic and kitchen upgrades are likely needed to reach market-leading standards. The property sits in an area described as having socio-economic challenges despite being a sought-after pocket locally — this affects long-term rental demand and resale comparables and should be considered by buyers and investors.
Overall this is a practical, well-located terraced house offering value for someone prepared to renovate. It suits a first-time buyer looking to add value or an investor targeting a refurbishment project with good views and private garden space.
2 bedroom end of terrace house for sale in Spruce Avenue, Johnstone, PA5 — £120,000 • 2 bed • 1 bath • 604 ft²
2 bedroom terraced house for sale in Forth Avenue, Paisley, Renfrewshire, PA2 — £82,500 • 2 bed • 1 bath • 932 ft²
2 bedroom villa for sale in 5 Glencally Avenue, Paisley, PA2 7PQ, PA2 — £110,000 • 2 bed • 1 bath • 807 ft²
2 bedroom end of terrace house for sale in 71 Craigmuir Road, Glasgow, Glasgow City, G52 — £125,000 • 2 bed • 1 bath • 883 ft²
2 bedroom semi-detached house for sale in Curzon Street, Ruchill, Glasgow, G20 9EZ, G20 — £115,000 • 2 bed • 1 bath • 764 ft²
3 bedroom terraced house for sale in 429 Hillpark Drive, Glasgow, Glasgow City, G43 — £125,000 • 3 bed • 2 bath • 1001 ft²






































































