Turnkey two-bedroom end-terrace with garden and development potential..
Newly renovated internally with new kitchen and modern bathroom
Full electrical rewire and new boiler plus radiators
Generous corner plot with landscaped rear garden
Potential for further development (subject to permissions)
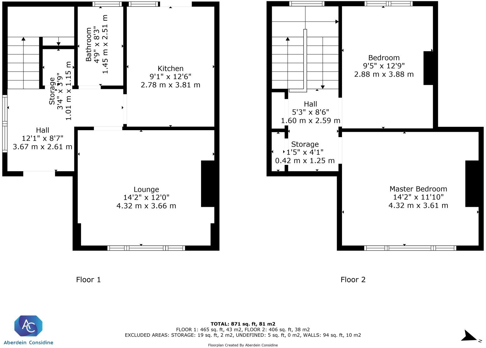
Approximately 883 sq ft; two double bedrooms
EPC rating D — moderate energy efficiency
Exterior and flat roof show age; external maintenance needed
Located in a very deprived area; tenure not specified
This recently upgraded two-bedroom end-terraced villa offers a largely turn-key home for first-time buyers seeking a bright, modern property. Interior works include a new kitchen with integrated appliances, a contemporary bathroom suite, full rewire, and a new boiler and radiators — all combining to reduce immediate maintenance and make the home move-in ready.
Set on a generous corner plot, the property benefits from a landscaped rear garden and scope for further development subject to planning permission. The living spaces are light and well-presented, with a comfortable lounge, two double bedrooms and an overall footprint of about 883 sq ft — practical for a small family or couple.
Buyers should note several practical considerations: the tenure is not specified, the EPC is D, and the external elevations and flat roof show signs of age and will need ongoing maintenance. The property sits in an area recorded as very deprived, which may influence resale values and local services.
This home’s key strengths are its recent internal upgrades, garden and development potential. It is best suited to a buyer seeking an affordable, ready-to-live-in property with scope to add value over time. Closing date: Friday 19th September at 11am.
2 bedroom semi-detached house for sale in Bardrain Road, Paisley, Renfrewshire, PA2 — £85,000 • 2 bed • 1 bath
2 bedroom semi-detached house for sale in Laggan Terrace, Renfrew, Renfrewshire, PA4 — £85,000 • 2 bed • 1 bath • 682 ft²
2 bedroom end of terrace house for sale in Spruce Avenue, Johnstone, PA5 — £120,000 • 2 bed • 1 bath • 604 ft²
2 bedroom semi-detached house for sale in Scarrel Gardens, Glasgow, Glasgow City, G45 — £90,000 • 2 bed • 1 bath
2 bedroom property for sale in 17 Burnfield Drive, Mansewood, Glasgow, G43 1BW, G43 — £149,000 • 2 bed • 1 bath • 689 ft²
3 bedroom house for sale in 34 Drumoyne Drive, Govan , G51 — £105,000 • 3 bed • 1 bath • 979 ft²






















































































