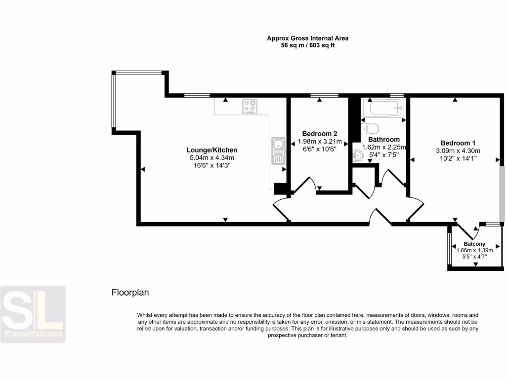
Light-filled open-plan living with balcony and allocated parking.
Top-floor two double bedrooms with large feature windows
A bright two-bedroom top-floor apartment in the award-winning Newhall development, ideal for first-time buyers seeking contemporary, low-maintenance living. The open-plan kitchen, lounge and dining area is flooded with light from large windows and opens onto a private balcony with wide-reaching third-floor views.
Practical benefits include allocated off-street parking, a long lease of 102 years and a below-average service charge (£578). The property is chain-free and well placed for Harlow Town and Harlow Mill stations, good road links to the M11, and local shops, cafés and schools within the development.
At about 603 sq ft the apartment is compact and best suited to buyers wanting modern, low-upkeep accommodation rather than expansive rooms. There is a single bathroom and the service charge and leasehold tenure should be noted by purchasers. Overall, this is a straightforward, move-in-ready option in a very affluent area with fast broadband and reliable local amenities.
2 bedroom penthouse for sale in New Pond Street, Newhall, CM17 — £295,000 • 2 bed • 2 bath • 914 ft²
2 bedroom apartment for sale in Coulter House, Great Ley Road, Newhall, Harlow, CM17 — £325,000 • 2 bed • 1 bath • 813 ft²
2 bedroom apartment for sale in Barnfield Way, Newhall, Harlow, CM17 — £300,000 • 2 bed • 2 bath • 771 ft²
1 bedroom apartment for sale in Maypole Street, Newhall, CM17 — £245,000 • 1 bed • 1 bath • 527 ft²
2 bedroom apartment for sale in Crossbill Way, Newhall, Harlow, CM17 — £270,000 • 2 bed • 2 bath • 753 ft²
2 bedroom apartment for sale in The Chase, Harlow, Essex, CM17 — £325,000 • 2 bed • 2 bath • 1560 ft²










































