YO26 6JY - 2 bedroom semidetached bungalow for sale in Riversvale Driv…

View on Property Piper

2 bedroom semi-detached bungalow for sale in Riversvale Drive, Nether Poppleton, York, YO26 6JY, YO26

Summary - 2 RIVERSVALE DRIVE NETHER POPPLETON YORK YO26 6JY

2 bed 1 bath Semi-Detached Bungalow

Chain-free two-bedroom bungalow with garage and new boiler, ready to update.
Chain free two-bedroom bungalow, single-storey convenience
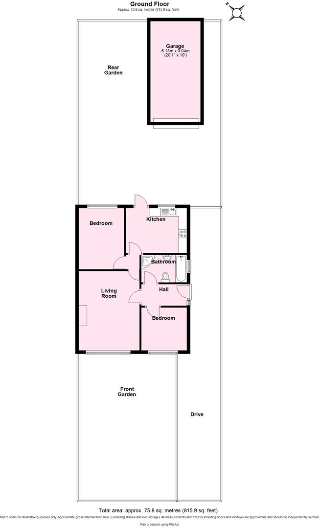
A bright two-bedroom semi-detached bungalow in Nether Poppleton, offered chain free and ready for a new owner to personalise. The single-storey layout suits downsizers or couples seeking low-maintenance living, with a spacious living room to the front and a fitted kitchen opening to the rear garden.

Practical benefits include a detached single garage, private driveway, decent front and rear gardens, double glazing and a new boiler fitted in 2023. The plot sits quietly back from the road in a prospering countryside village with good local amenities, regular bus services and a nearby railway station providing direct connections to York, Harrogate and Leeds.

The property does require cosmetic updating and some renovation to realise its full potential; internal presentation is typical of post‑war stock and modest works would significantly increase value. There is a medium flood risk to note, and any buyer should carry out appropriate enquiries and insurance checks. Overall this is a sensible, low‑upkeep bungalow with scope to modernise and adapt, offered freehold with affordable council tax.

Property Details

Brochure Descriptions

Image Descriptions

Floorplan Description

Rooms

Textual Property Features

Target Audience

AI Tags

Detected Visual Features

EPC Details

Nearby Schools

Nearest Bars And Restaurants

,,,,}

Nearest General Shops

,,}

Nearest Grocery shops

,,}

Nearest Supermarkets

,,}

Nearest Religious buildings

,,}

Nearest Medical buildings

,,,}

Nearest Airports

}

Nearest Leisure Facilities

,,,,}

Nearest Tourist attractions

,,}

Nearest Train stations

,,,,}

Nearest Bus stations and stops

,,,,}

Nearest Hotels

,,}

Tags

Local Market Stats

Similar Properties

Meta

High Res Images

Compatible Images

Low res Images

Thumbnails

Raw Images

High Res Floorplan Images

Compatible Floorplan Images

Low res Floorplan Images

FloorplanImages Thumbnail

Raw Floorplan Images