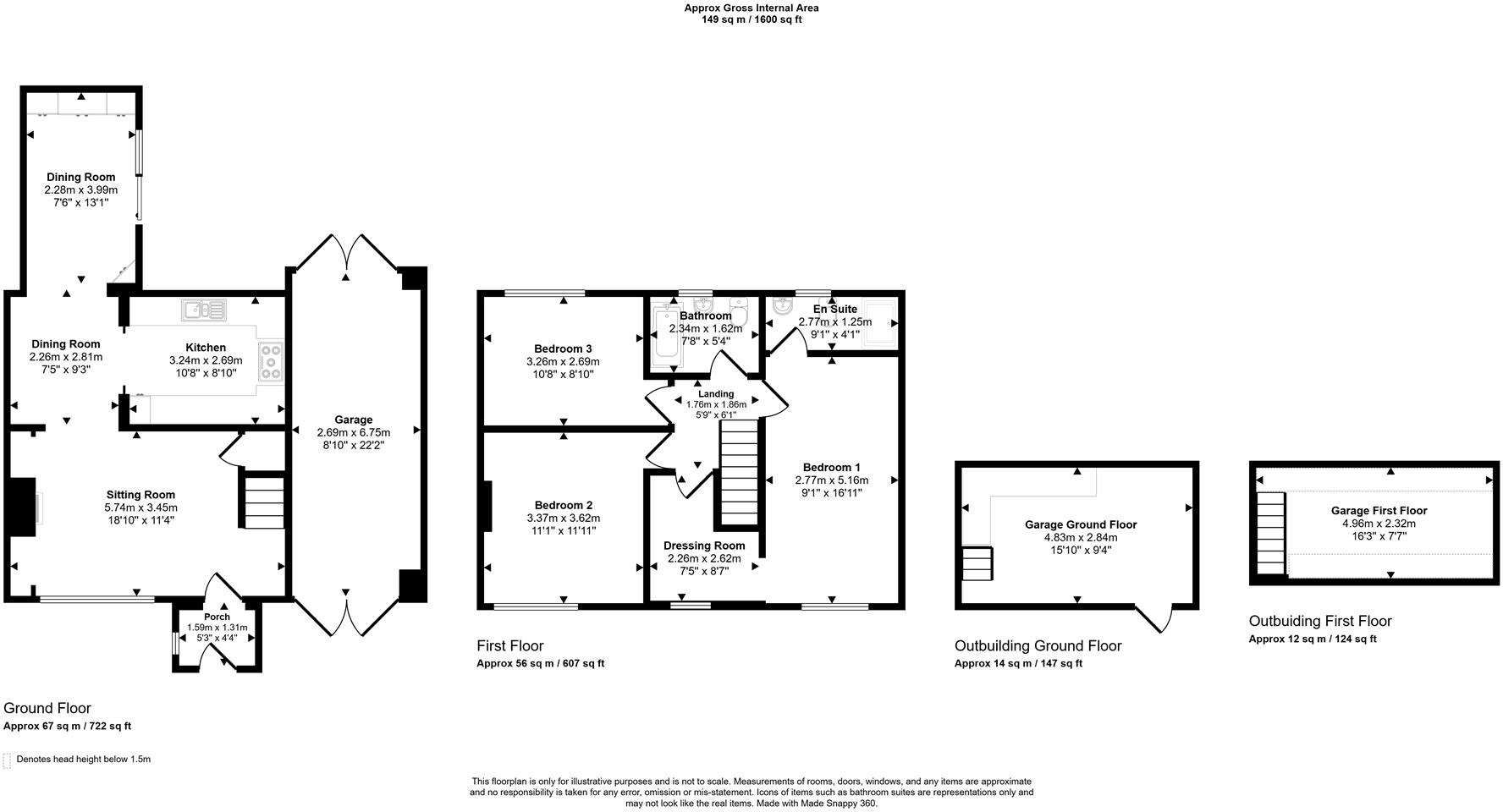
Large family home with garages and clear scope for an additional bedroom.
Three double bedrooms; principal includes dressing room and en‑suite
Potential to convert space into a fourth bedroom or home office
Two garages, one with a room above (storage or conversion potential)
Driveway parking with gated, block‑paved forecourt
18ft sitting room and separate dining/entertaining spaces
Low‑maintenance paved rear garden; limited scope for planting
Presented in good decorative order; uPVC double glazing throughout
EPC and council tax band currently to be confirmed
This extended three-bedroom semi-detached house offers roomy family accommodation and practical outdoor space within easy walking distance of Sonning Common village centre and Memorial Park. The principal bedroom is a generous 16ft suite with a dressing room and en‑suite, and there is clear potential to create a fourth bedroom or flexible study space.
Ground floor living is spacious and well laid out, with an 18ft sitting room and a kitchen/dining area that opens via a brick arch into an additional dining room with sliding doors to the paved rear garden. The property is presented in good decorative order and benefits from uPVC double glazing and mains services.
Outside there are two garages (one with a room above) and a block‑paved driveway behind metal gates providing secure off‑street parking. The rear garden is low‑maintenance, paved and fully enclosed — ideal for easy upkeep but offering limited scope for extensive landscaping.
Buyers should note practical details: EPC and council tax band are to be confirmed. The house sits in a very affluent, low‑crime area with excellent mobile signal and fast broadband, and it would particularly suit a growing family seeking good local schools and quick access to Reading, Henley and transport links.
4 bedroom detached house for sale in Peppard Road, Sonning Common, RG4 — £875,000 • 4 bed • 2 bath • 2512 ft²
4 bedroom detached house for sale in Grove Road, Sonning Common, RG4 — £915,000 • 4 bed • 2 bath • 1584 ft²
3 bedroom semi-detached house for sale in Churchill Crescent, Sonning Common, RG4 — £475,000 • 3 bed • 1 bath • 994 ft²
4 bedroom detached house for sale in Peppard Road, Sonning Common, Reading, RG4 — £875,000 • 4 bed • 3 bath • 2512 ft²
4 bedroom detached house for sale in Grove Road, Sonning Common, RG4 — £849,950 • 4 bed • 2 bath • 2211 ft²
3 bedroom semi-detached house for sale in Lea Road, Sonning Common, Reading, Oxfordshire, RG4 — £510,000 • 3 bed • 1 bath • 1036 ft²














































