Characterful four-bedroom cottage with stunning kitchen and private garden.
Nearly 1,600 sqft of tastefully decorated period accommodation
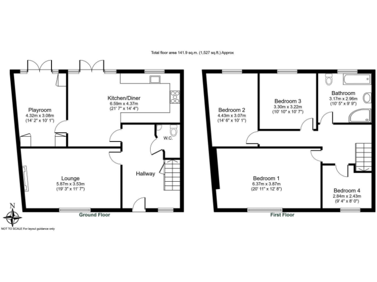
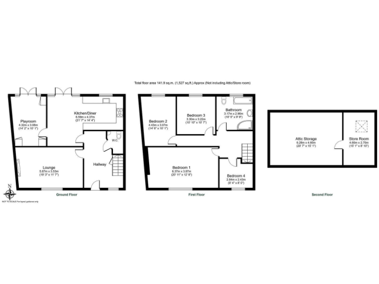
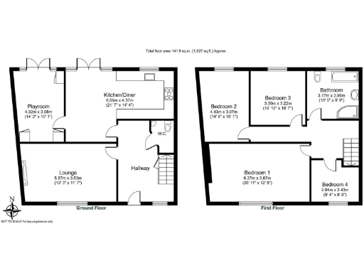
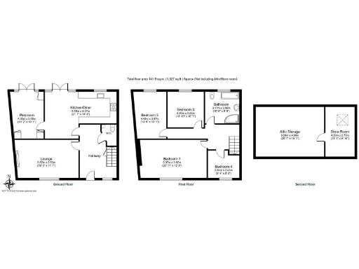
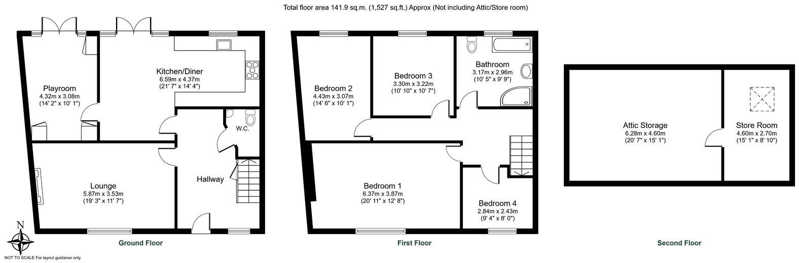
A beautifully presented four-bedroom period cottage in the heart of Clifford, offering nearly 1,600 sqft of well-balanced living space for family life. High ceilings, exposed beams and an elegant open fire give the principal reception a warm, characterful feel, while a stunning open-plan dining kitchen provides a practical hub for everyday living and entertaining. Double-glazed windows and mains gas central heating add modern comfort to the period fabric.
The house has two spacious reception rooms, generous principal bedroom and a large, well-appointed house bathroom with bath and separate walk-in shower. Practical features include useful under-stairs storage, a partially boarded loft, and bespoke fitted furniture in the secondary reception that houses laundry appliances discreetly. Off-street parking is available to the rear via Albion Street and the enclosed rear garden combines a stone-flagged patio with a small lawn and well-stocked borders.
Notable considerations are factual: the property’s original stone walls are assumed to have no cavity insulation, which could affect running costs and future improvement plans. The plot is small and the property has a single house bathroom servicing four bedrooms. Council tax is above average. Overall this is a characterful, comfortable family home in a very affluent, low-crime village location close to Boston Spa and good local schools.
2 bedroom end of terrace house for sale in Albion Street, Clifford, LS23 — £250,000 • 2 bed • 1 bath • 668 ft²
3 bedroom terraced house for sale in Clifford, Albion Street, LS23 — £250,000 • 3 bed • 1 bath • 925 ft²
3 bedroom end of terrace house for sale in High Street, Clifford, Wetherby, LS23 — £395,000 • 3 bed • 2 bath • 1339 ft²
4 bedroom detached house for sale in Lairum Rise, Clifford, LS23 — £600,000 • 4 bed • 2 bath • 2039 ft²
4 bedroom house for sale in Nunnery Way, Clifford, Wetherby, West Yorkshire, LS23 — £465,000 • 4 bed • 3 bath • 1541 ft²
4 bedroom detached house for sale in Ashmead, Clifford, LS23 — £595,000 • 4 bed • 2 bath • 1595 ft²


















































































































