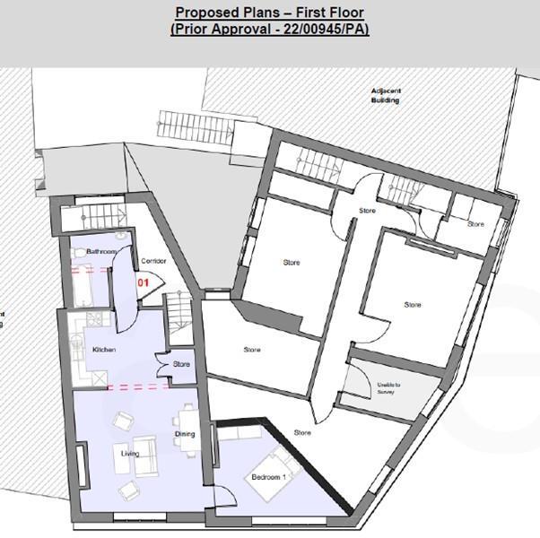
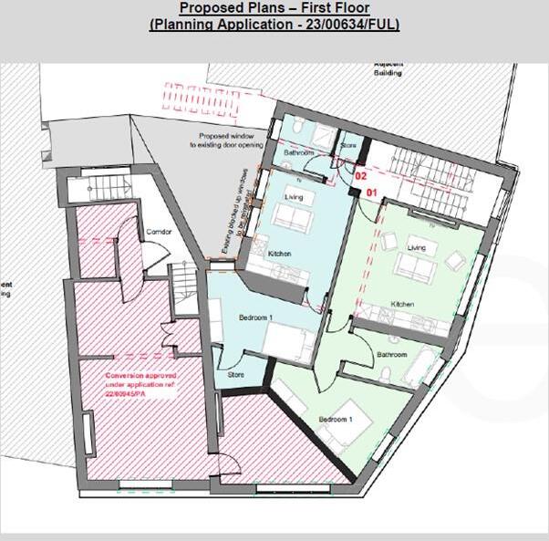
Six permitted one-bed conversions with long leasehold security.
Prime town-centre position on Northgate
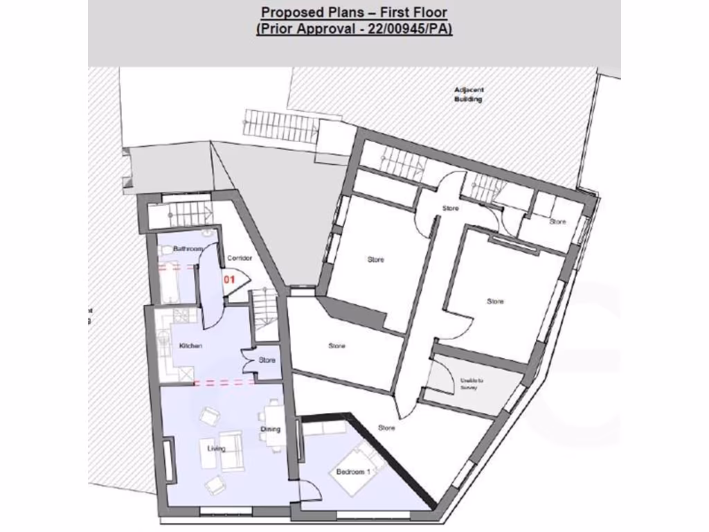
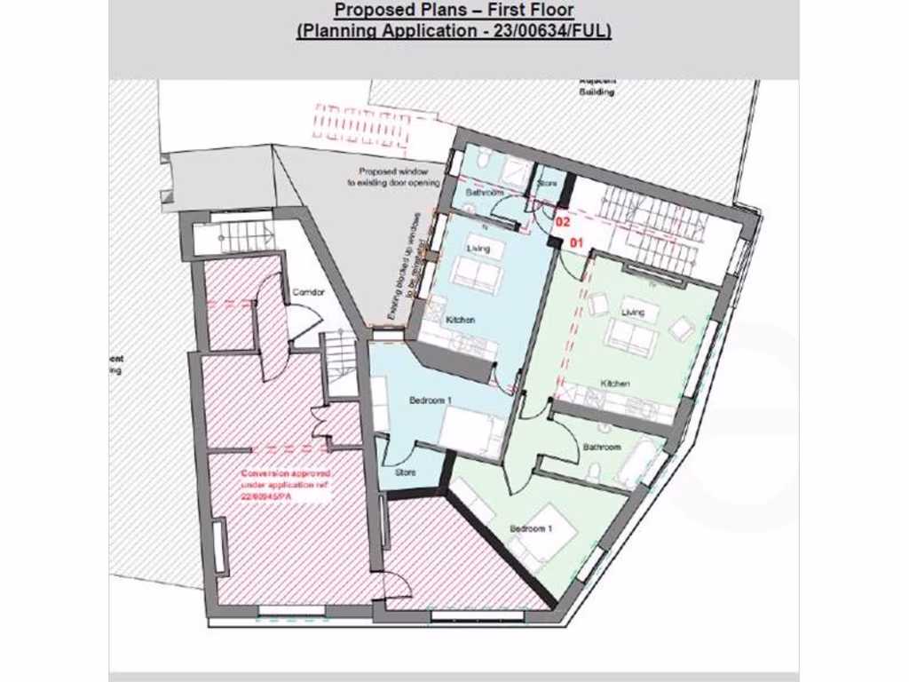
A central development opportunity in Darlington’s Northgate with generous internal area across two upper floors. The property benefits from a newly created 200-year lease and planning consent expected for six 1-bed apartments, making it straightforward to progress a let-ready conversion for rental income.
The building offers around 2,522 sq ft of adaptable space with separate access from Crown Street and large period windows, allowing practical apartment layouts. Excellent mobile signal, nearby public transport and a wide range of town-centre amenities support tenant demand for city living and convenience.
Buyers should note material location drawbacks: the site sits in a very deprived area with high local crime rates, which will influence rent levels, occupant profile and management costs. The upper floors are currently cellular former offices/stores and will require full conversion and fit-out works to create the agreed apartments.
For investors the strengths are clear: low entry price, long leasehold security and planning for six one-bed units in a prime town-centre position. Budget realistically for refurbishment, management and possible yield impacts from the local socio-economic profile when assessing projected returns.
Commercial property for sale in Northgate, Darlington, DL1 — £385,000 • 1 bed • 1 bath • 4550 ft²
Studio apartment for sale in Dr Piper House, Darlington , County Durham, DL3 — £3,525,000 • 1 bed • 1 bath • 435 ft²
Office for sale in Bakehouse Hill, Darlington, Durham, DL1 — £325,000 • 1 bed • 1 bath • 4000 ft²
Commercial development for sale in Regency West Mall, Stockton-On-Tees, Durham, TS18 — £299,999 • 29 bed • 1 bath • 15586 ft²
Land for sale in Prince Regent Street, Stockton-On-Tees, TS18 — £490,000 • 1 bed • 1 bath
Studio apartment for sale in Dr Piper House, Darlington , County Durham, DL3 — £4,900,000 • 1 bed • 1 bath • 727 ft²






























