Secure retail income now with clear residential conversion upside for investors.
- Prominent three-storey corner freehold on Northgate, high pedestrian visibility
- Producing £25,000 per annum from a strong covenant retail tenant
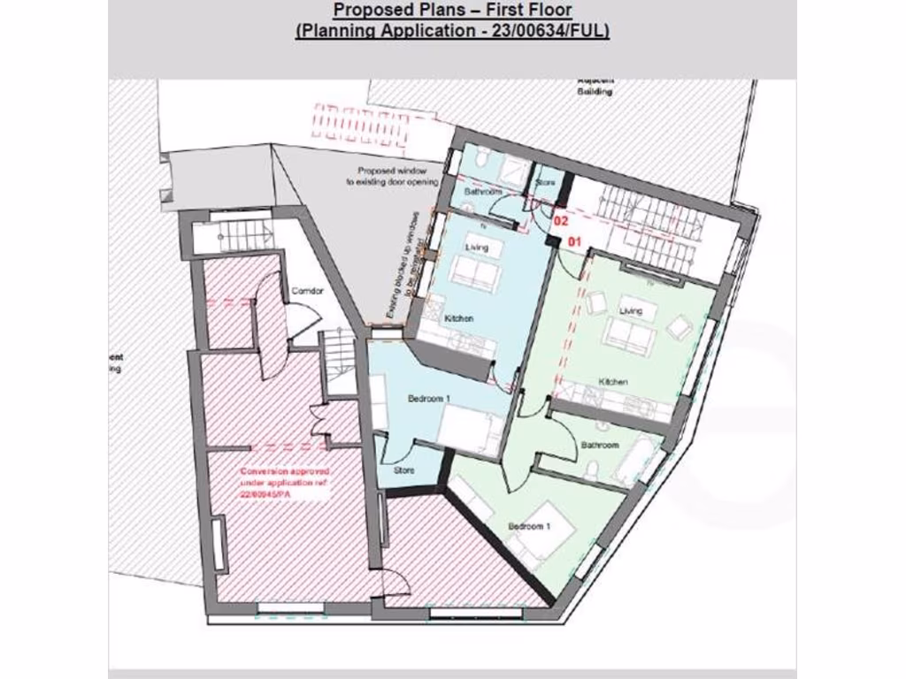
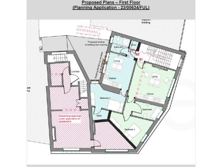
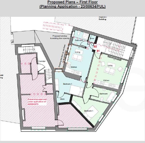
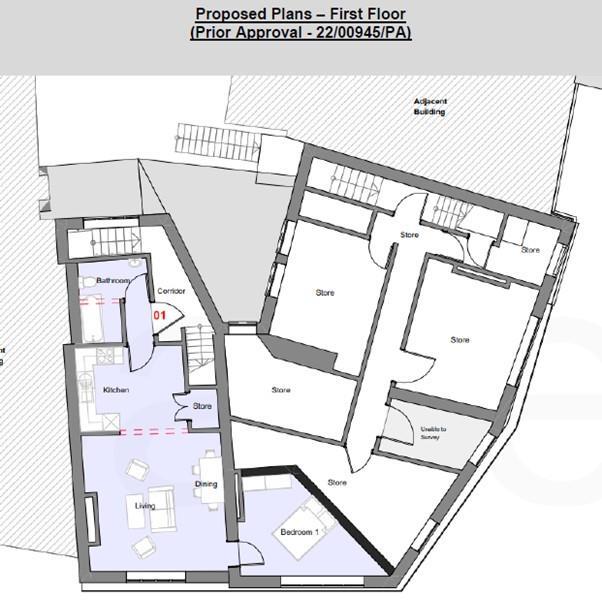
- Upper floors expected to receive consent for conversion to six apartments
- Total area circa 4,550 sq ft across three floors, decent plot footprint
- No private garden; building sits directly onto pavement with on-street parking
- Area classed very deprived and local crime levels reported high
- Upper floors require conversion works and fit-out for lettable flats
- Mobile signal excellent; broadband speeds average for letting needs
A prominent three-storey corner freehold in Darlington town centre, producing a secure retail income of £25,000 per annum. The ground-floor retail unit benefits from full-width glazing and strong pedestrian visibility on Northgate, while the upper floors offer a clear asset-management route to add residential value.
Plans and consultant drawings indicate the first and second floors can be converted into six self-contained apartments (consent anticipated). Individual flats are proposed as small-to-average one-bed or studio units, suitable for letting to single occupants or constrained renters; the upper floors were previously cellular office/store rooms and will require conversion work and fit-out to create lettable flats.
The property suits an investor seeking immediate rental income plus medium-term development upside from residential conversion. Practical points to note: the building sits directly on the pavement with no private garden, the area is classified as very deprived and recorded crime levels are high. These local factors affect tenant profiles and management costs, but the town-centre location, nearby car parks and extensive retail amenities support rental demand.
Overall this is a straightforward town-centre investment/development opportunity: secure retail covenant and scope to unlock additional value upstairs through permitted residential conversion, subject to the anticipated consents and the usual conversion works and local management considerations.
2 bedroom terraced house for sale in 4 Stonebridge, Darlington, County Durham, DL1 1PB, DL1 — £110,000 • 2 bed • 1 bath
Commercial property for sale in North Road, Darlington, DL1 — £400,000 • 1 bed • 1 bath • 4423 ft²
High street retail property for sale in Bondgate, Darlington, DL3 — £265,000 • 1 bed • 1 bath • 4958 ft²
Commercial property for sale in Skinnergate, Darlington, DL3 — £450,000 • 1 bed • 1 bath
Land for sale in Prince Regent Street, Stockton-On-Tees, TS18 — £490,000 • 1 bed • 1 bath
Commercial property for sale in Mixed Investment Property in Darlington, 82-86 North Road, Darlington, DL1 2EQ, DL1 — £400,000 • 1 bed • 1 bath • 4423 ft²


































