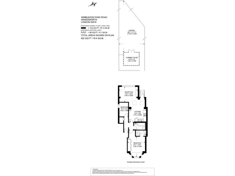
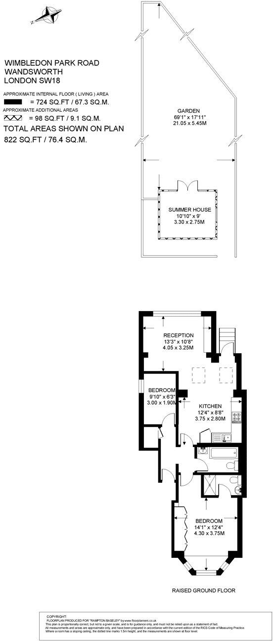
Bright two-bedroom home with long private outdoor space and versatile summer house.
Two double bedrooms, principal with en-suite and fitted wardrobes
Approximately 724 sq ft internal space, modest/medium sized layout
Private rear garden approximately 60–70 ft with summer house
Share of freehold; very long lease (992 years remaining)
Underfloor heating and double glazing; boiler on mains gas
EPC C and Council Tax band C — moderate running costs
Property built pre-1900; may require periodic maintenance
Set on a raised ground floor, this well-presented two-bedroom apartment combines period character with contemporary finishes and unusually generous private outdoor space. The principal bedroom features a bay window and bespoke wardrobes with an en-suite, while the reception and open-plan kitchen/dining benefit from large windows and plentiful natural light.
The private rear garden extends to about 60–70 ft and includes a summer house suitable for a home office, gym or studio — a rare asset for a property of this size. Practical comforts include underfloor heating fed by a boiler, double glazing and integrated kitchen appliances, making the flat move-in ready for professionals or a small family.
Important facts: the property totals approximately 724 sq ft, has a share of freehold with 992 years remaining, and is council tax band C with an EPC rating of C. The building dates from before 1900, so periodic maintenance may be needed to retain period fabric and services. Crime and deprivation levels are average for the area.
Location is a key draw: close to Wimbledon Park, the River Thames at Putney and excellent local schools. Southfields Underground (District Line), plus nearby rail and bus routes, provide fast links into central London — making this a practical choice for commuters and families seeking green space without sacrificing connectivity.
2 bedroom flat for sale in Granville Road, London, SW18 — £475,000 • 2 bed • 2 bath • 771 ft²
2 bedroom flat for sale in Durnsford Road, Southfields, London, SW19 — £575,000 • 2 bed • 1 bath • 824 ft²
2 bedroom maisonette for sale in Merton Road, London, SW18 — £500,000 • 2 bed • 2 bath • 617 ft²
2 bedroom flat for sale in Wimbledon Park Road, Southfields, London, SW18 — £525,000 • 2 bed • 1 bath • 750 ft²
2 bedroom flat for sale in Wimbledon Park Road, London, SW18 — £490,000 • 2 bed • 1 bath • 576 ft²
1 bedroom flat for sale in Wimbledon Park Road, London, SW18 — £525,000 • 1 bed • 1 bath • 585 ft²






















































