Characterful one-bedroom tenement flat with high ceilings and good transport links..
Freehold one-bedroom flat, approximately 474 sq ft
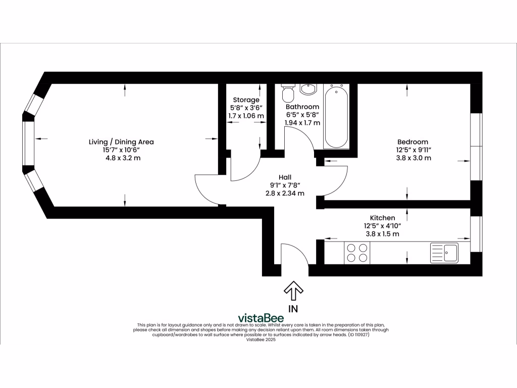
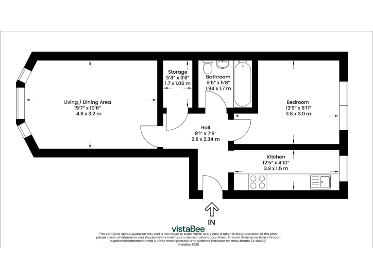
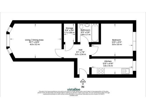
Set within a traditional red sandstone tenement on Victoria Street, this one-bedroom flat offers a compact, practical home for a first-time buyer or buy-to-let investor. High bay windows and generous ceiling heights give the main reception room a bright, airy feel uncommon in properties of this size. The flat is freehold and benefits from double glazing and communal gardens.
The layout includes a welcoming reception hallway, bay-windowed lounge, well-equipped kitchen with ample storage, a sizable double bedroom and a spacious bathroom. At approximately 474 sq ft, the accommodation is average-sized and efficient for single occupancy or a couple. Excellent mobile signal and fast broadband make the flat well suited to remote working or streaming.
Considerations are straightforward: the property sits in a very deprived local area, which affects local services and may influence resale or rental demand. Parking is on-street only, and the flat shares communal entrance and stair access. Transport links are good, with frequent buses and a short drive to Glasgow city centre and the motorway network, making daily commuting realistic.
Overall this is a characterful, practical flat with period features and modern comforts, suitable for someone seeking an affordable entry into the market or an investor looking for a central-Rutherglen letting opportunity. Buyers should visit to assess space and finish in person and weigh the local area profile against the property’s strengths.
1 bedroom flat for sale in Queen Street, Rutherglen, Glasgow, South Lanarkshire, G73 — £100,000 • 1 bed • 1 bath • 560 ft²
1 bedroom flat for sale in Burnhill Quadrant, Rutherglen, G73 — £87,000 • 1 bed • 1 bath • 495 ft²
1 bedroom flat for sale in Ardgay Street, Glasgow, Glasgow City, G32 — £45,000 • 1 bed • 1 bath
1 bedroom flat for sale in Paisley Road, Renfrew, PA4 — £55,000 • 1 bed • 1 bath • 624 ft²
1 bedroom flat for sale in Burghead Place, Glasgow, Glasgow City, G51 — £85,000 • 1 bed • 1 bath • 437 ft²
1 bedroom flat for sale in Wellshot Road, Tollcross, G32 7AU, G32 — £85,000 • 1 bed • 1 bath • 501 ft²






























































