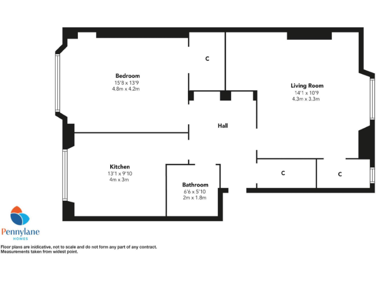
Large rooms, period character and exceptional storage at a low entry price..
Freehold one-bedroom flat, 624 sq ft, first floor
A rare entry-price flat in a traditional red sandstone block, this first-floor one-bedroom offers generous room sizes and classic period character. High ceilings and large windows fill the lounge and bedroom with natural light, while built-in recessed shelving and two walk-in cupboards deliver outstanding storage for a property of this size.
The large fitted dining kitchen provides space for a table and everyday entertaining, and the bathroom is fitted with a modern three-piece white suite with shower over bath. Practical comforts include gas central heating, double glazing, secure door entry with keyless access, fast broadband and excellent mobile signal. The communal rear gardens add outdoor space without maintenance responsibilities.
At £55,000 and offered freehold, this 624 sq ft flat will particularly suit first-time buyers or buy-to-let investors seeking low-cost entry and renovation potential. The property sits in a very deprived local area classified for constrained renters and migrant families — that supports rental demand but may affect long-term capital growth and resale comparability. Prospective buyers should weigh the strong internal space and low running costs (cheap council tax; EPC C) against broader neighbourhood factors.
1 bedroom flat for sale in Ardgay Street, Glasgow, Glasgow City, G32 — £45,000 • 1 bed • 1 bath
1 bedroom flat for sale in 102 Old Castle Road, Flat 0/1, Cathcart, Glasgow, G44 5TF, G44 — £119,000 • 1 bed • 1 bath • 495 ft²
1 bedroom flat for sale in Mansionhouse Road, Glasgow, Glasgow City, G41 — £165,000 • 1 bed • 1 bath • 554 ft²
1 bedroom flat for sale in Middleton Street, Cessnock, Glasgow, G51 — £74,999 • 1 bed • 1 bath
1 bedroom flat for sale in Appin Road, Haghill, Glasgow, G31 — £85,000 • 1 bed • 1 bath
1 bedroom apartment for sale in Tantallon Road, Shawlands, Glasgow, G41 — £170,000 • 1 bed • 1 bath • 716 ft²






























































